
此間 30 坪的現代風居家,是即將成婚的年輕情侶未來的生活空間,期盼有個溫暖、舒適的住居,且平時喜愛烹飪、烘焙的他們,希望新家能有一個開放式餐廚與大中島,在大展身手時同時能培養家人情感。
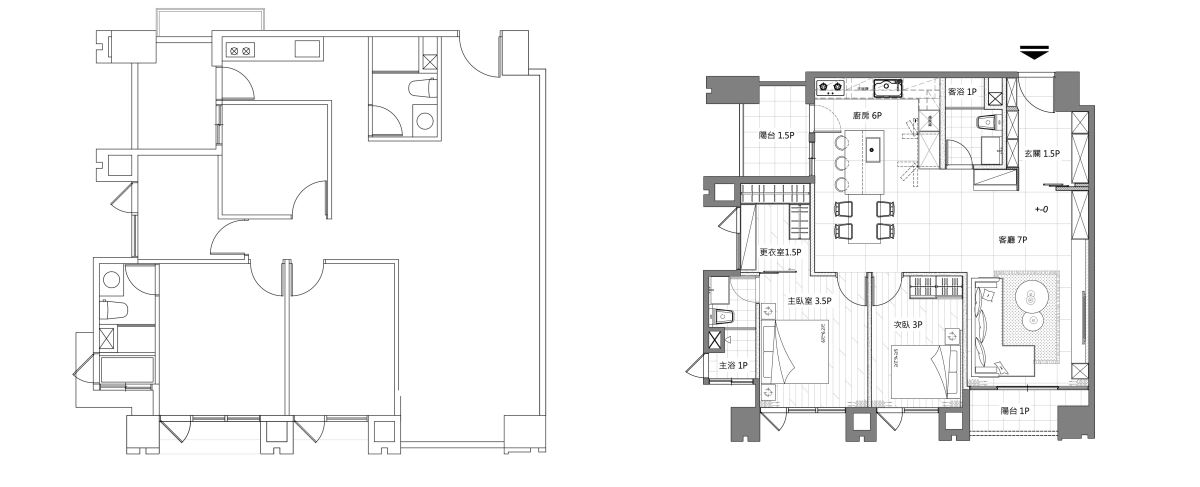
銘家室內設計為了回應屋主的需求,首先調整空間格局,因現在僅有兩人居住,因此原本四房改為兩房,並將原本封閉式的一字型廚房打開,打造開放式中島廚房,擴大餐廚空間,而衛浴的門片也轉向面對客廳,不僅使用動線更為方便順暢,廚房側邊也能增加電器櫃與冰箱空間,滿足餐區的收納機能。

整體室內空間運用沈穩的深淺灰色搭配米色,塑造溫暖又安定的場域氛圍,而一進門玄關左側安排穿鞋椅,右側平台可擺放進出門小物,並規劃一整排鞋櫃櫃與衣帽櫃,提供全家人的鞋量收納。因為大門正對客廳落地窗,為了化解穿堂煞氣則利用玻璃鐵件推拉門遮擋,並且劃出玄關落塵區。進入客廳,灰色紋理電視牆與沙發背牆的特殊塗料相互呼應,不同色階的暖灰色勾勒視覺層次,而天花橫有三大樑柱,無形中讓人有壓迫感,設計師運用黑色燈條及筒狀燈與樑柱交錯賦予設計、塑造輕盈視覺,L 型背牆上方則以鋁框燈條洗牆形塑空間質感。



原本封閉式的廚房藉由打開牆面、及調整格局減去一房後成為與客廳串連的開放式客餐廚,方形的大中島設有水龍頭,方便進行洗滌食材與餐具,旁側延伸餐桌則成為親朋好友聚會們最愛逗留之處,且平常料理時也能與廳區、餐區有所互動,增進家人情感。中島上方三盞圓形鐵件吊燈,與天花上由客廳延伸到餐廳的三條黑色燈條與飾條相映成趣,不僅能指引空間視覺,且不同造型的照明與裝飾更是凸顯設計巧思,令簡約居家體現型格。



由餐區旁隱形於牆面中的門片進入臥室,頓時別有洞天,床頭咖啡色的繃布飾板利用洗牆間接光源與復古造型壁燈形放大空間印象,搭配木質地板則勾勒恬靜的舒眠氛圍。而為了不打擾睡眠品質,臥房與隔壁房間打通規劃一更衣室,雖然內坪數不大,但梳妝台、衣櫃收納一應俱全,並且透過玻璃門扇引光入主臥,並利用局部長虹玻璃、局部清波的設計延伸視覺同時提供隱私。
善於傾聽客戶需求的銘家室內設計,此次仍然秉承著「用手作,打造有溫度的家」的經營理念,引導屋主打造出心中理想家園。


