提醒你
本網站隱私權政策已於2018年7月20日更新,請至閱覽並同意新版隱私權政策,若您未勾選同意而繼續使用本網站,則視為您已同意新版隱私權政策。

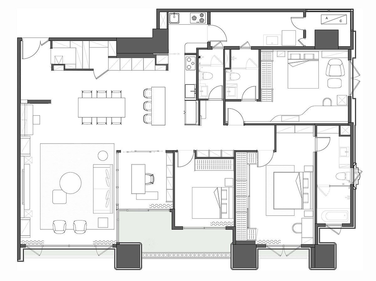
對於已經有購屋和裝潢經驗的屋主,再次面對新居裝潢時,比起追求視覺風格,反而會更在意生活機能和格局配置。本案是位於市中心的住宅大樓,坐擁優越的生活機能與難能可貴的窗景視野。以退休生活、聚會為出發點作為設計的初衷,60 坪空間從半毛胚狀態開始規劃,選擇以簡單而精緻的建材打造雋永的空間意象,微調格局打造未來生活模板,將男屋主低調而溫柔的愛,挹注到現代全齡宅之中。
地點:台北
屋型:半毛胚屋
風格:現代簡約風
室內: 60 坪
格局:3+1 房 2 廳 2 衛
居住人數: 2 大 1 小
.格局需求:需要大量儲藏空間,但不會對生活動線造成壓迫。
.廳房需求:除了主臥、孝親房和小孩房之外,還希望能擁有一間半開放式多功能書房,滿足有夫妻所需的個人獨立空間。
.風格需求:原本就喜歡 YHS DESIGN 的現代設計風格,透過表述喜愛的沈穩內斂氛圍,其餘交由設計師的專業去具象化屋主追求的雋永耐看的住宅設計。
① 天地壁設計:
延續 YHS DESIGN 一貫的設計語彙,玄關整面大理石牆藉由脫縫設計,刻畫出牆面腰帶呈現更好的空間比例;入內後開放式外廚的電器櫃牆以內凹 40 公分的ㄇ字玻璃展櫃包覆電器櫃。電視主牆淺色大理石牆面在材質上呼應玄關,藉由色彩創造主從之分;對稱設計搭配透氣布料及金屬格柵,兼顧美感與散熱機能;線性語彙由公領域延伸到房門與床頭牆,透過設計的連貫性達到舒適的居住體驗。



地板以材質變化界定場域,落塵區選擇與牆面相同的大理石鋪面,進入餐廚空間後轉換成米色大理石地磚;以廊道作為軸線,客廳及書房轉換成海島型木地板延續至臥室,全部採取無接縫設計提升住宅安全性,也是設計團隊眼中全齡宅的標準配備。由於建物樓高比一般住宅高了 30 公分,特別利用雙色呼應地板材質變化、雕塑手法讓視覺延伸,保有設計感及原有高挑的感覺,在極簡與過分裝飾之間找到絕佳平衡點。


② 空間格局:
針對長型的住宅空間,空間配置上圍繞著開放式的中島廚房放射狀佈局,客廳、餐廳等適合聚會的空間視為起點,需要絕對安靜私領域則放置在底端,在開放式設計裡界定聚會與獨處空間。微調原始窄長的玄關植入更豐富的收納機能,客廳與餐廳之間的牆面擺放鋼琴作為媒介,透過屋主的既有家具創造別緻廊道端景。



拆除客廳後方的隔間牆,使用仿古面的金屬與茶色玻璃消弭隔間帶來的壓迫感,更優化採光、創造出客廳景深。外廚與餐桌結合並植入齊備的廚電設備,訂製中島作為內外廚的橋樑,平時聚會或家人用餐在開放式區域就能完成。內廚連接工作陽台、外廚則可以直接通往書房空間,替女主人主要的生活習慣搭建出最順暢的動線。三間臥房依序分佈於廊道上,錯置的入口化解風水疑慮,大幅提昇日常居住體驗。



③ 收納規劃:
微調玄關格局後大理石成為落塵區端景,鞋櫃與儲藏室則與廚房電器櫃整併,簡化櫃體帶來的厚重感與分割線,但依然保有屋主要求的充足收納機能。輕薄大理石形塑的層板稍微退縮讓視聽設備成為主角;電視牆對稱的機櫃設計細膩,除了門片採用透氣布料,側邊大理石以金屬格柵達到完美散熱的效果,滿足男屋主最在意客廳空間。


書房與廊道上的收納採取開放式格櫃為主,封閉收納為輔的設計方式,避免櫃體壓縮空間外,有疏有密的收納設定也能更有效利用空間。結合將展示與儲物的收納性質呼應全室櫃體,整體的設計語彙能因應生活的變化,成就經得起時間推演、型隨機能的設計。

④ 建材應用:
有別於一般現代輕奢宅的視覺風格,YHS DESIGN 以生活的舒適度來選擇建材使用方式,雖然也使用了大理石、玻璃與鍍鈦金屬等,但不過分強調建材在空間裡的裝飾性,大理石透過拼花與分割呈現自然比例;鍍鈦金屬做特別處理降低反光性,玻璃的選擇上也以帶色澤的茶玻與黑玻,搭配沈穩的木質來達到異材質拼接的關聯性。


公私領域材質種類統一、只是在比例上做調配,公共區域拉高大理石與金屬的比例呈現大氣氛圍;私領域則拉高木質、皮革等溫潤的元素,浴室大理石地板與檯面做消光處理,形塑耐看、耐用又雋永的住宅風格。


⑤ 燈飾設計:
以自然採光先決,再來決定人工光源的留明度。住宅中除了自然光源外,首重間接照明的配置,大量使用壁燈、地燈和燈帶設計,創造具有渲染力的柔和光源。不僅收納櫃內鑲嵌的燈帶,連窗簾盒都有配置氣氛燈;從走道兩側的夜路系統,到離地 30 公分的夜燈不需要屋主刻意要求,也是設計團隊在每個案子裡都會植入的標準配備。


由於設計上客廳吊燈早已被間接照明取代,光源的序列讓空間均亮的坎燈搭配餐廳主燈,是輔助間接照明和自然光源以外,能因應需求做到全亮和點狀投射的光源配置。在色溫上也以柔和的暖光為主,白光則以自然採光為優先,在重點輔以人工照明,削弱過去燈光的刺眼感,呈現符合生活作息、感知白晝變化的生活空間。

⑥ 色彩計畫:
以深淺灰色為現代風格宅的基調,公領域中的灰透過不同的大理石呈現,鍍鈦、網布等少量建材也依循灰調勾勒空間。局部設計上透過木質、皮革和燈飾加入暖棕色調,刻畫住宅空間的人文風情。主臥牆面以皮革做為表材,材質的延續隱蔽廁所入口也整合化妝台;仿古銅立柱及雲石壁燈也是暖棕的詮釋,廁所備品櫃延續臥室木格柵語彙,加上橘色暈光營造渡假飯店的休閒氛圍。



