提醒你
本網站隱私權政策已於2018年7月20日更新,請至閱覽並同意新版隱私權政策,若您未勾選同意而繼續使用本網站,則視為您已同意新版隱私權政策。

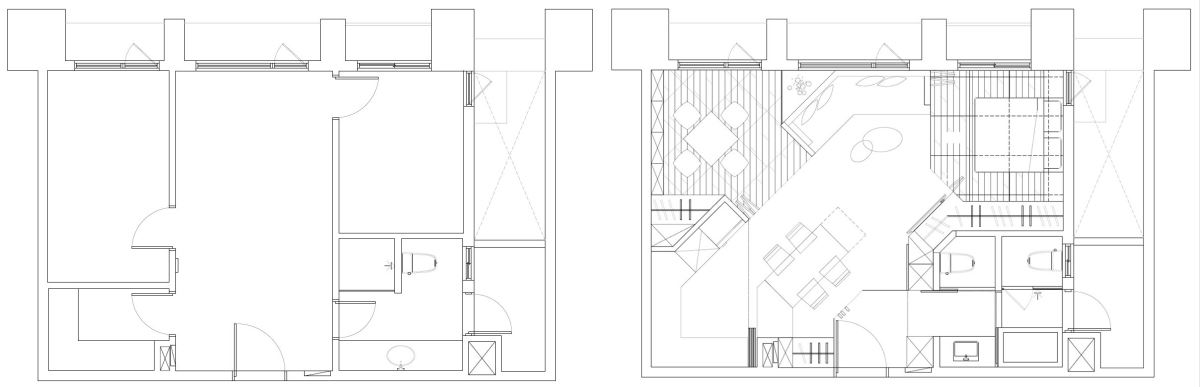
許多人購買新成屋,常陷入格局迷思,人們都想要空間視覺看起來更大,但建商蓋好的房子,雖然多為方正格局,若採機能隨形的設計,面對格局不佳,有時一進門的視野立即被限縮於左右兩側臥房的牆面內,阻礙光線穿透且空間看起來狹小,僅能看到縱向視野,實在可惜。
擅長以建築的專業思考,著重空間格局動線配置的將作空間設計總監張成一,改採形隨機能的設計理念,破除一般人對空間的意識形態,打破封閉式格局思考,解構後重整反而能創造開闊的視野與空間,讓人居住其中飽覽窗外美景,放大視覺尺度與空間感,15 坪彷彿擁有 30 坪的寬廣與機能,令人讚嘆。
由於此案僅有 15 坪,室內空間不大,總監採用形隨機能的設計方式,不必侷限於格局方正的想法,原始格局追求方正,區隔出三區涇渭分明的空間,而且空間各自獨立,無法互補不足與互動,使得進門的視野僅限於縱向。總監創新以角度重新定義居宅尺度,一次解決所有問題,獨到的 45 度斜角能讓縱向與橫向的視線整合,屋主一進門可同時看到和室、客廳和臥房三面窗戶的視野,開拓小宅與眾不同的放大感。


玄關旁規劃大型收納櫃,具有一日衣櫃的功用,下方還可收雨傘雜物,隱藏式穿鞋椅讓穿脫鞋更舒適安全,進門左側開放的平台區也可擺放盆栽或隨手小物,鐵件屏風具有阻隔效果巧妙化解風水疑慮,也保有穿透感。連續櫃體由玄關一路延伸至客廳電視牆,滿足海量收納需求,電視牆下方懸浮設計具有輕盈感,也可收納機器設備,是集結收納、風水、美型的理想設計。


公領域以輕淺色系為基調,具有視覺放大的效果,將原本封閉廚房的開口擴大,以開放式廚房取代,讓廚房、中島、餐廳甚至客廳都串聯一起,精準的角度設計拿捏使小宅變身大空間,動線超順暢。


多功能室營造日式和室的典雅氛圍,備有升降桌,升起時可以泡茶閱讀或當作親友的團聚交誼空間,收起後關上折門也能享有隱私一秒化身臨時客房,牆面不僅有落地的開放式展示書櫃,另一側也暗藏衣櫃及燙衣板,符合屋主使用習慣,生活更便利。

更厲害的是,多功能和室房全區架高 40 公分,榻榻米下方也都能收納,讓小宅最擔心的收納問題迎刃而解。和室折門取代拉門,能減少音量傳遞,闔上時也能收整到最小化,放大空間感,在空間坪數不大的居宅中,和室也可以成為客廳的延伸。


主臥木質半高牆面為休憩空間挹注溫潤感受,根據屋主需求將床靠牆擺放增加安全感,提升睡眠品質,床頭及側邊安排收納櫃體。

原始格局動線不佳,導致要去後陽台時會先經過衛浴,設計後調整為兩間廁所,免除搶馬桶的窘境,要去後陽台時也不影響浴廁使用。門片若隱若現帶有朦朧美感,轉化浴室的意象,門片關上時,也能形成一個完整的空間,為居家融入生活美學,生活升級更優雅。
