提醒你
本網站隱私權政策已於2018年7月20日更新,請至閱覽並同意新版隱私權政策,若您未勾選同意而繼續使用本網站,則視為您已同意新版隱私權政策。

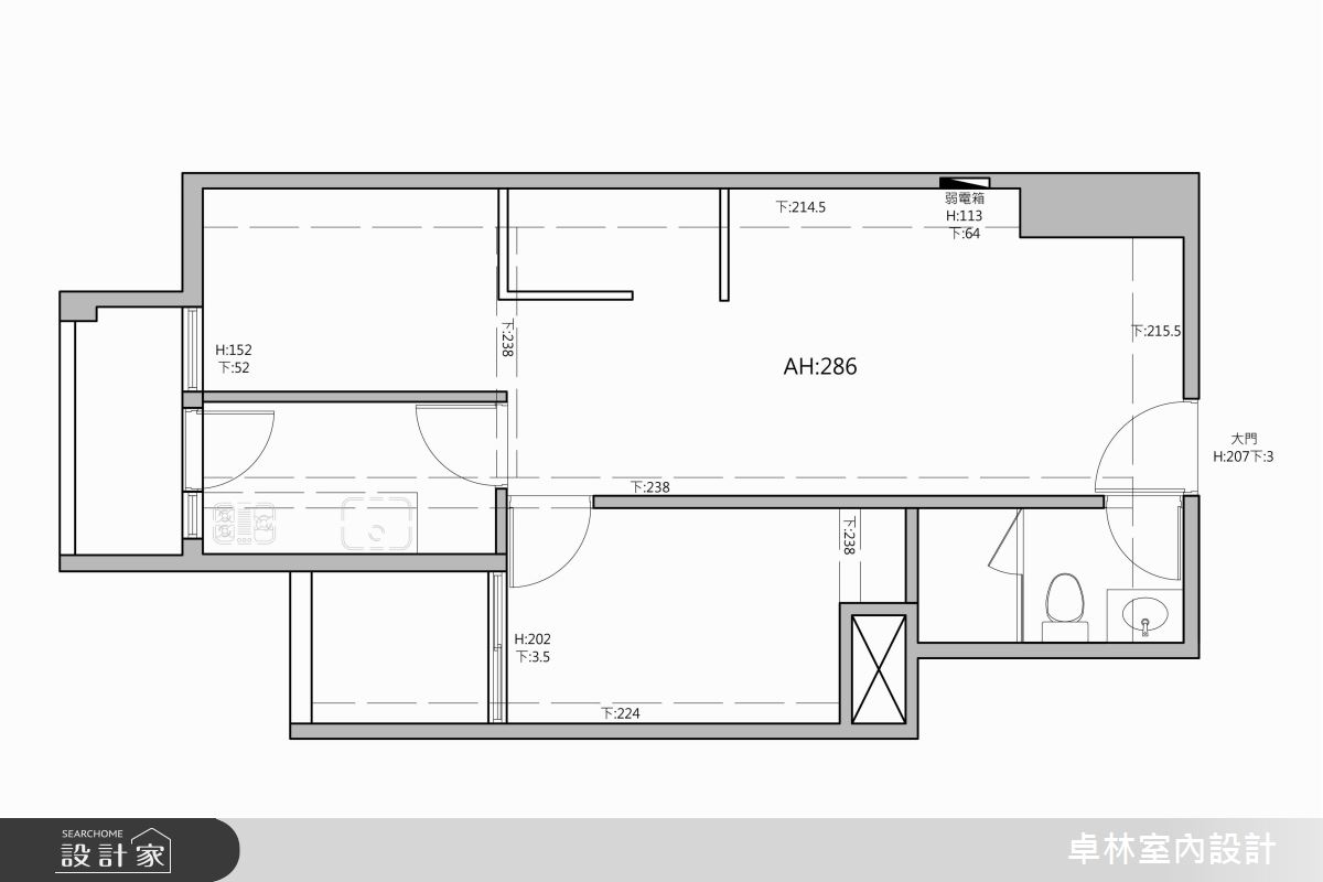
雖然是新成屋,卻有著樑柱明顯與屋高壓迫問題,面對原始屋況的窘境,卓林設計師Jeff Chu重新梳理長型屋格局,利用樑下空間植入頂天收納櫃,垂直延展視覺外亦解決小坪數收納不足的問題;採光絕佳處規劃中島連接餐桌,創造悠閒的午茶時光;天花板美式線板層次搭配懸浮隔屏創造出空間景深,讓 11.9 坪住宅活出優雅的底氣。
1. 玄關:
長型新成屋有著大量橫越的樑柱壓迫原本不大的空間,設計師重新梳理空間後沿著樑下規劃頂天高櫃,在有限空間讓玄關收納極大化,打破了原本過小的長型格局,賦予更多儲物空間。美式線板與天花板層次搭配別緻大理石圍塑出舒適的落塵區,以木作訂製門廊創造出玄關進入室內空間的優雅過場,小細節提升生活中的儀式感。



2.客廳&餐廳:
依循長型屋格局,將客廳規劃在位於空間的正中央創造平衡美學,靠近採光窗的一字型廚房加裝中島連接餐桌,打造女屋主夢想中的陽光餐廚,可以與親友共享悠閒的午茶時光外,亦將狹長空間調整為舒服寬敞的比例。電視主牆滑軌設計能跨場域觀影;底層的收納牆也可以依照需求移動電視牆,在空間與收納機能之間找到絕佳平衡點。沙發背牆後面規劃成主臥睡眠區,訂製美式造型屏風,以懸吊設計避免地坪被截斷,有效放大空間也創造出別緻的空間層次。






3.臥室:
安排在沙發後方的寢居空間,以一道訂製懸浮屏風取代傳統的玻璃拉門,上半段鐵件格柵造型連結白色屏風,替隔屏注入優雅的美式氣質,亦達到採光與隱私的平衡;包樑設計透過線板層次弱化柱體的存在感,讓原本空間劣勢成為別緻的裝飾設計。圓弧床頭以繃布包覆柔軟舒適,床頭鑲嵌燈帶提供柔和的夜間照明,搭配兩座圓形床頭櫃讓曲線穿梭於空間之中。整座衣櫃以嵌入式設計與大樑切齊,統一水平的設計達到坪效最大化,在僅 11.9 坪的空間中,精準調整格局讓小宅能夠住得從容自在。


