提醒你
本網站隱私權政策已於2018年7月20日更新,請至閱覽並同意新版隱私權政策,若您未勾選同意而繼續使用本網站,則視為您已同意新版隱私權政策。

這是一個位於屏東的4樓透天厝,每一層樓的坪數都只有15坪左右,雖然單層坪數不大,但居住成員很簡單,只有一對夫妻和一隻黃金獵犬,屋主希望能在此長住20年,為了要實現屋主長久居住的夢想,不論是設計風格、建材用料、施工工法和生活品質的規劃上,都非常講究、也能看到許多設計師的巧思。
透天厝的優點,就是每層樓的用途都可以明確劃分,一樓是做為停車場、玄關和孝親房使用,選用灰色的特殊塗料搭配不銹鋼櫃,天花板的燈帶既有照明又有個性,看起來非常的時尚都會;玄關處選擇六角形的大理石地板,做工繁複、低調賦予細節;孝親房則盡量保有原本新成屋配有的地板磁磚、樓梯扶手、以增加機能性的收納櫃體為主。
二樓主要是做為公領域規劃,以玫瑰鍍鈦金屬製作拱門,進入後客廳區的天花板以黑色鍍鈦線條形塑獨特個性,盡量在天花板留白、不完全包覆、適度留白,讓人久待也不會感受到壓迫,電視牆則在黃金雕刻大理石與玫瑰金邊跳接,沙發背牆則選用不鏽鋼鑲嵌光條,展現豐富細節。餐廚區因隱藏管線之故天花板稍低,以全白色拉高天花板高度,壁面則用黑色增加深度,讓餐廳區域深邃迷人。
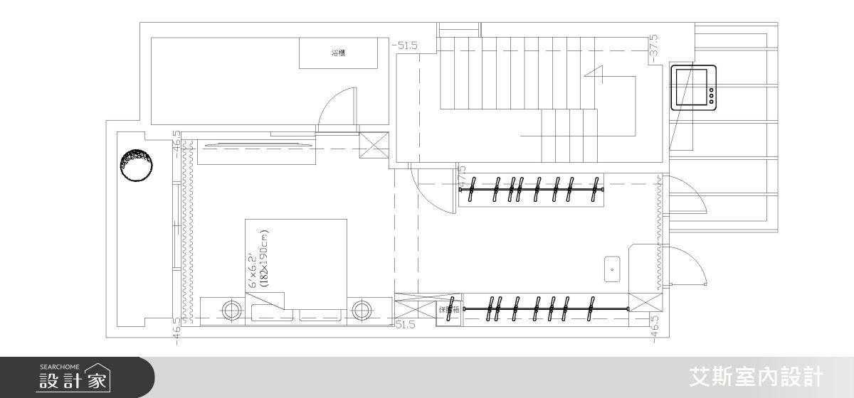
三樓則取消一間隔間,變成加上更衣室的一大房,降低視覺上的壓迫,床頭運用使用鍍鈦線條和石材的異材質結合,為空間注入獨特魅力。
小編的最愛
四樓的書房調整了入口處門扇的大小,原本的實牆也改為鐵件加長虹玻璃,增加空間的穿透感,書房中擺放的水族箱是男主人的興趣,書桌是夫妻兩人可共同使用的狀態,女屋主拼拼圖、男屋主則工作,成為一處展示及培養自己興趣的空間。












