提醒你
本網站隱私權政策已於2018年7月20日更新,請至閱覽並同意新版隱私權政策,若您未勾選同意而繼續使用本網站,則視為您已同意新版隱私權政策。

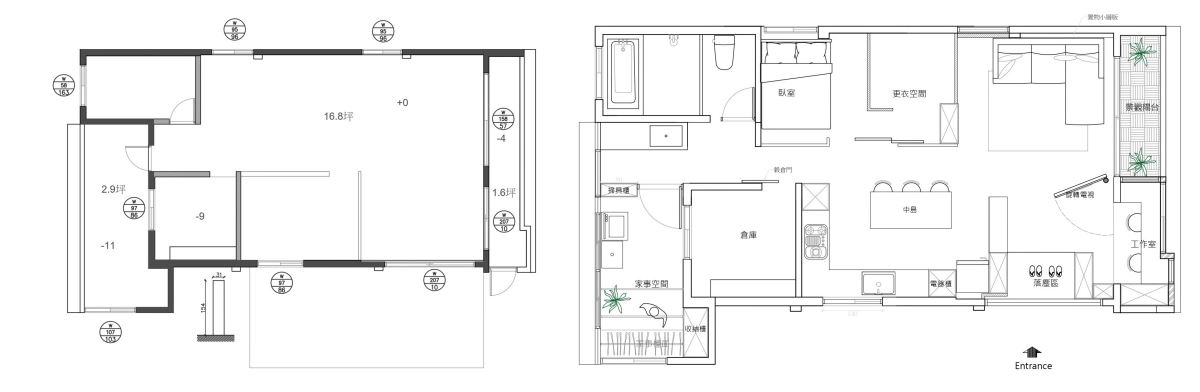
走過十多年的老屋,早已不符合屋主當前的生活習慣與需求,經過基礎工程翻新,並以輕美式布局空間氛圍,重新賦予宅邸新生命。原始空間屬於頂樓加蓋,因此室內異常悶熱,加上漏水、壁癌、採光不足、格局零碎等原始問題;張睿誠設計師整頓基礎工程,且打造落地窗、微調格局、整併機能,更多讓老屋蛻變日光輕美式宅的秘訣,讓我們一起揭曉!

原始房屋為鐵皮屋,利用輕鋼架鋪設天花板,壓低空間高度且防熱功能不足。因此,拆除原始輕鋼架,加強防熱功能之外,天花板以簡約造型並結合原木格柵,創造斜屋頂設計感,呼應美式風味道,並營造挑高的室內氛圍。
BEFORE

AFTER

原始建築最佳的迎光面,只透過半高窗戶接引自然光,造成室內幽暗、光線不足。為了解決此問題,將半高窗型調整成客廳沙發旁的落地窗,引入大量自然光。更進一步規劃旋轉木紋電視牆,解決制式牆面會遮蔽光線的問題。彈性可調整電視版面,滿足客廳與廚房空間的使用;同時創造書房區的隱密性,讓屋主享有寧靜的辦公空間。
BEFORE

AFTER


原始陽台兩側分別規劃廚房與家事工作區,每當料理時,油煙會薰染到另一側曬掛的衣服。為了解決油煙問題的窘況,並實現屋主期待大廚房的夢想。將室內一房拆除、戶外廚房移到此區,搭配白色中島兼具餐桌、料理工作檯及電器櫃設計,形成ㄇ字型動線的大廚房場域。
BEFORE

AFTER


整體空間利用大量白色作為基底,主臥外牆妝點奶油色,暗示領域機能;透過漸層的柔美色系,營造放鬆、舒服的輕美式場域。利用沙發背牆的小平台、轉角嵌入式展示收納櫃,陳列風格美學小物;中島上方吊燈覆蓋藤編材質罩子,調和愜意的美式風格。



張睿誠設計師以使用者的生活思維出發,整合專業工程、設計美感及機能規劃,描繪獨一無二的居所風貌。
