提醒你
本網站隱私權政策已於2018年7月20日更新,請至閱覽並同意新版隱私權政策,若您未勾選同意而繼續使用本網站,則視為您已同意新版隱私權政策。

常四處旅遊、在世界各地設置多間房產的屋主,先前已委託設計師多次,此次購入台北市難能可貴的湖畔景觀宅,期望在格局設計上能掙脫制式的水平或垂直思考,展露全新的居家面貌。
這個難題由具備建築師資格、著重空間格局動線配置的將作空間設計總監張成一,發揮建築專業、創意思考與設計技巧,重新解構空間,以靈動的弧形線條概念劃分場域,順勢將絕美的湖光山色視角放到最大,全面整合於生活機能中,讓人居住其中宛如停留在一幅風景怡人的自然山水畫間,樂享優雅人生。
位於台北市湖畔的景觀美宅,因窗外珍貴優美的湖光山色而價格不斐,設計之初便規劃能與窗外產生互動的關係,內部的視線藉由弧線引導到窗外景致,因弧線較水平與垂直線條更為動態,空間感看起來也會比水平或垂直設計較為擴大,運用弧線當作視線與情緒的連結,在弧線圓滑流暢之間,就能輕鬆地把空間變大變小,呈現最理想的居家環境。設計師保留居宅先天優勢,摒除一般傳統方正空間規劃思考,改採形隨機能的設計理念,成功將湖畔景觀宅的景致與舒適度,推向新高度!

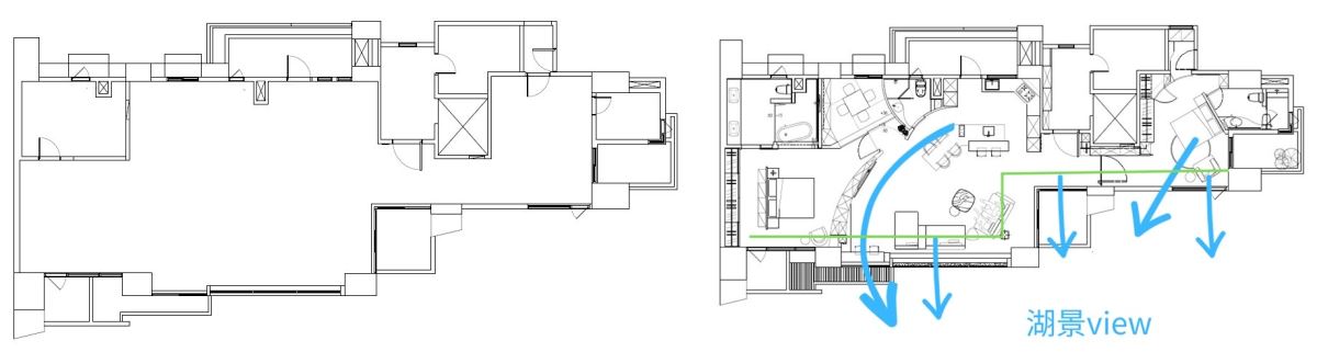
預售屋時期即委託客變,公領域精準而專業的三道弧線,串聯起客廳、臥室、多功能房、客浴、餐廳與廚房六大空間,形成視覺拉闊的圓弧效果,弧線和客浴的弧形牆面相呼應,另一端也延伸客廳的視覺,若是取消這神奇弧線的設定,將會導致三大問題,包含主臥空間變小,餐桌變小變短、多功能室缺乏足夠的開口面向主臥,具功能性的弧線能讓客廳、主臥的空間大小合宜且都享有最大化湖畔景觀。設計師神乎其技的弧線設計,讓各空間的大小調配不受限於建物的管道間或樑柱,反而可以透過弧線的流暢度來化解於無形。

室內大面連續落地玻璃窗引景入室,公領域以清淺的白色為基調,地坪鋪設溫潤原木木地板,藉由餐廳、中島立面、沙發藍色跳色,呼應窗外的清澈湖水及寬廣天際的天然景致,藍色特殊漆營造出湖面波光粼粼閃亮的模樣,應屋主要求,設計餐桌與中島吧台高度一致,彰顯居宅的氣勢與規模,弧形電視牆讓空間顯得不呆板,整體設計內外連成一氣,成功打造居家景深,不論朝霞、黃昏,位於居家的任一角落,隨時抬起頭來都被窗外變幻的美景所環繞,臨窗的景觀吧台也讓生活更加愜意。



多功能室架高地坪以突顯此場域的獨特性,備有升降桌可視需求使用,當升降桌升起時,沏茶閱讀或辦公皆可,升降桌降下,闔上拉門就能保有隱私,一秒化身臨時臥房,也為生活賦予更多樂趣及可能性。多功能房門的設計也相當精巧,當多功能房的兩片拉門,全部往右方客浴的方向闔上時,此時多功能房可與主臥連動整體隱密化,若兩門片全部往左開,就是開放的多功能室,機能十足。


主臥以皮革圍塑的半高床頭背牆,顯現低奢質感,後方保留通道,開放式櫃體可展示精品包包,納入生活習慣動線,於更衣室挑選衣服後,步入浴室享受療癒的沐浴時刻,浴室木百葉挹注浪漫的異國風情,偌大的主浴採四分離式設計,泡澡、淋浴、馬桶與雙洗手台分區獨立,整體規劃媲美星級飯店的總統套房。


玄關往左通往次臥的方向,以型鋼從天花板延伸到牆壁,勾勒視覺連貫的線條感,型鋼上方以玻璃增加穿透感,當房門敞開時,宛若湖畔小徑的景象,自然景深引人前往欣賞,昇華一般人對臥房的定義。當房門關上時,玻璃材質也能阻隔聲響,塑造放鬆寧靜的休憩場域。

