提醒你
本網站隱私權政策已於2018年7月20日更新,請至閱覽並同意新版隱私權政策,若您未勾選同意而繼續使用本網站,則視為您已同意新版隱私權政策。

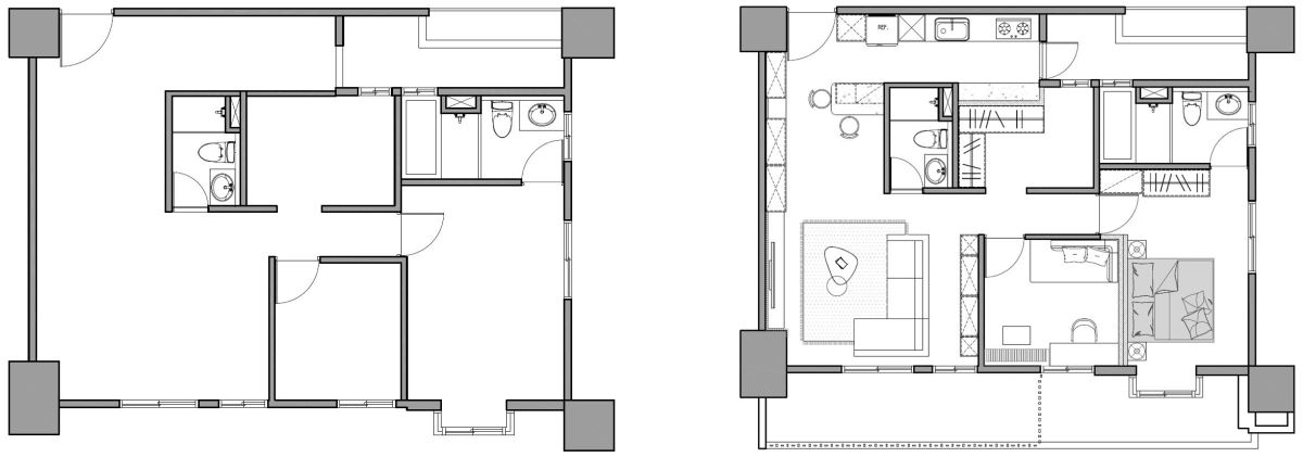
男屋主 Max+未婚妻 Gracy,期待未來能與孩子愛犬一起生活。
一直以來都十分渴望能購入一個心目中的夢想家。
我認為購屋若是為了自住,越早買房,漂泊無依的心也能越快安穩下來,由於我的工作是居家辦公型態,相較之下也比大多數屋主更加地在意居住空間的品質。2 年前,我們成為了首購族,購入了位於高雄且鄰近綠地的20坪新成屋,主因是我與未婚妻的生活藍圖內,希望有個讓孩子、愛犬都能舒適愜意的生活環境,空間風格上也能圓夢我們最喜愛的簡約現代風格。

購屋後,因為工作原因,我依然定居於台北,希望能找到讓屋主安心、定時回報的設計公司,避免面臨要時常南下監工看屋的狀況。原以為買了房子後一切都好說,沒想到裝修才是更加燒腦的階段!光是格局規劃、整體配色、建材選用等等,都需要花非常多時間與設計師來回協調討論,也讓我更加堅定要找一間報價合理、施作安心的設計公司。
前前後後我們諮詢了約 10 間設計公司,許多網路文章都寫著「百萬裝潢」,但接洽後多數設計師的報價都超乎我們的預算,更有些設計不是那麼貼近我們心目中的期待。
而後,有個朋友向我推薦了大門室內裝修設計。在接洽過程中,就能感受到蔡總監對於「預算控管」十分精確,裝修完後整體裝修費用雖然比預期多了一些,但主因是設計師 Ru 在裝修過程中,帶我們認識了更多的建材,我與未婚妻討論後決心讓選材升級,打造更有質感的居家環境,裝修完也讓我覺得錢都花在了看得見、摸得到的地方了!超級值得!
設計師的解決方案:
驗屋階段設計師 Ru 就提供了許多務實的建議,也會事先考量到未來的生活需求,而裝修過程中設計師 Ru 也會按時回報裝修狀況,並進行遠端會議耐心地與我們來回溝通,甚至一討論完就給我們看了 3D 圖面進行二次確認,整個裝修過程都讓我們感到十分安心,所以我與未婚妻只看了一次現場狀況,下一次就是直接入住新家了!
我們希望新家能夠擁有開闊的廳區、採光明亮的書房,並能盡量將多數空間讓渡給公領域,我想這對小坪數空間而言,是個很大的挑戰!快一起來看看我們的現代風美宅 House Tour 吧!










我想,首購族對於未來居所抱著一定的期待,同時又非常害怕受傷!不過入住了半年,家裡每個空間我與未婚妻都非常喜歡!謝謝大門室內裝修設計、設計師 Ru,一直耐心聆聽我們的需求,從屋主出發做設計而非只考量外觀,雖然我們不懂設計,但這個家,由內而外的讓我感到舒適。
