提醒你
本網站隱私權政策已於2018年7月20日更新,請至閱覽並同意新版隱私權政策,若您未勾選同意而繼續使用本網站,則視為您已同意新版隱私權政策。

「買房到底要買新成屋還是老屋?」買房裝修是許多人一輩子的夢想,當夢想即將成真,激動的情緒總是難以言喻。不過在那之前,要買新成屋還是老屋,卻是困擾了屋主們的一大問題,今天明代室內裝修設計就要用兩個實際案例來為大家介紹,新成屋與老屋在裝修時有什麼不同,還有到底要怎麼挑!
1、購屋預算有多少?
2、理想坪數要多大?
3、理想地點在哪裡?
4、工作型態是什麼?
建商剛完工開售或屋齡兩年以下,尚無人居住過的房子。
優點:新建築法規完善,結構更安全、外型亮眼、公設相對齊全、裝修工期相對短
缺點:總價高、公設比高、建案選擇性少
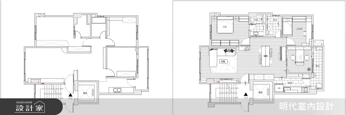
38 坪 / 新成屋( 5 年以下) / 四房 / 現代風
38 坪的空間為屋主購入的第二間房子,因前次裝修與明代設計團隊的良好經驗,讓他決定再續前緣。這次要裝修的是一間建築結構強韌,且基礎工程完善的新成屋,但因屋主相當重視堪輿學,同時也為了打開公區視野,最終選擇微調格局。先拆除一房歸為公領域所用,再將生活重心由客廳轉為兼具用餐、閱讀的複合式場域,最後透過回字型動線串聯所有機能,視覺開闊,還能在無形中增加互動交流的機會。


客廳電視牆融入「圜」的概念,以圓潤的弧形修飾稜角,既賦予流暢柔和的感受,還象徵著一家人對圓滿生活的期許。在材質部分,則選用圭藻土鋪陳,稻梗點綴層次,將大自然的餽贈帶入居宅,緊密呼應自然宅的堅持,同時還可達到調節濕氣的作用。


設計團隊認為「比起 3C,我們更應該專注在家人間的互動」,因此融合餐廳與書房的複合式空間,為公領域的主角!寬敞的桌面可容納多人同時使用,吧檯下方與後方懸浮櫃體提供大量收納,依循比例原則分割的畫面有如居家端景,當暖陽隨著時間更迭,獨一無二的畫面更是耐人尋味。


屋齡大於 30 年的房子皆可稱為老屋。
優點:總價低、使用面積大、議價空間大、格局更動彈性大
缺點:建材結構相對新法規而言沒這麼嚴謹、裝修工程大、附加公設少
28 坪 / 老屋 ( 16 ~ 30 年 ) / 三房 / 簡約風
本案位於台北市, 30 年過去,年邁的老空間乘載了許多回憶,但基礎工程多少也都變得有些老舊,漏水、噪音與各種維修反覆發生,除了裝修,還需重塑水電、結構等基礎工程,而這也顯示為什麼「裝修」是老屋入住前的必備過程。
在重建基礎工程後,考量本案採光面較小,選擇將原女兒房與書房位置對調,並順勢向內推移,讓渡出寬敞的公領域,最後再以一道長虹玻璃拉門取代書房實體牆面,原本的單面採光瞬間化身雙面採光,放眼望去視野全然開闊,女兒房的隱私也得以兼顧,還為全家人打造出一個休閒時的新選擇。



公領域設計開闊大氣,俐落的線條簡約清爽,而居家空間必備的收納則隱於其中。電視牆位於樑下,設計團隊巧用與牆體間的深度,增設臨時置物區,不僅進出動線更便利,大樑也被完美修飾。餐廳處也採用相同手法,將收納置於樑下,再透過白色與大空間調和,若隱若現的存在感取得實用機能與美感間的黃金比。


【桃園分公司】桃園市中壢區元化路275號10F