提醒你
本網站隱私權政策已於2018年7月20日更新,請至閱覽並同意新版隱私權政策,若您未勾選同意而繼續使用本網站,則視為您已同意新版隱私權政策。

「找不到比家更好的度假空間」。是這間27坪北歐鄉村風居宅的最好闡述。因為屋主希望能在假日時有個放鬆休息的空間,加上喜歡邀請親朋好友一起共渡美好時光,因此期盼引入渡假、閒適語彙於此空間之中,成為假日一家四口與家人、好友們共聚的秘密基地。
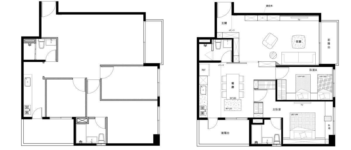
為了營造開闊的聚會空間,好厝元創將原始三房改為兩房,並透過釋放出來的空間作為半開放式餐廚區,局部則納入主臥之中增加臥房內的收納空間。而客餐廳之間利用活動拉門來實現內外區隔,敞開時是開闊的聚會交誼廳,關起時則確保私領域隱私,此外,這樣一來原本浪費的廊道空間也得以妥善應用。

一進入室內,玄關區改鋪花磚,不僅讓人眼睛一亮,更是圍塑出落塵區,讓入門的情緒得以轉換。而整體空間以北歐休閒風為主調,並融合美式鄉村風的元素,客廳電視牆即是以白色線板櫃體體現美式精神,而沙發背牆的小麥、草綠跳色則在簡單中營造恬靜雅緻氛圍。場域以光線、氣流和行走路徑的開放流動性與連貫性,作為全室佈局主軸,將客廳與餐廚區的內外場景被無隔閡地串連一塊。特意加大的活動拉門以格子窗呼應空間的鄉村氛圍,同時創造半開放式的餐廚空間,餐廳區中島連結餐桌,滿足女主人對烹飪和電器收納的需求,同時也能容納更多座位數。




原本的房間打開後局部納入主臥,稍微調整動線並增加了兩個大的衣櫃,解決主臥室空間不足的問題,並且於窗邊設置臥榻閱讀區和小茶几,令屋主能在此享受寧靜的閱讀時光,而兩個茶几一高一低恰好符合屋主夫婦使用,客製設計提供更為切合使用情境。而考慮到渡假宅是為假日休息居所,因此兩個男孩共用次臥,以清澈和純淨湖水藍跳色書寫心靈平靜的寢臥空間。




在這個放鬆的休閒宅,好厝元創利用設計將視覺聚焦,除了玄關花磚落塵區外,同時在側邊規劃洞洞板牆面,增添裝飾的彈性與收納功能,此外,最特別的是客廳天花燈條設計,提供活力和層次感。
設計師在保持原有結構的基礎上,對動線和空間進行了重新規劃,令普通的居宅搖身一變為舒適的度假宅,滿足屋主的各種需求,營造出放鬆的度假氛圍,使屋主和客人們都能在此享受愉快的時光。

