提醒你
本網站隱私權政策已於2018年7月20日更新,請至閱覽並同意新版隱私權政策,若您未勾選同意而繼續使用本網站,則視為您已同意新版隱私權政策。

一個人要負擔買房與裝潢壓力,確實不易,因此預算更該花得精準到位,建議屋主盡量放下「格局一定要方正」的觀念,才可利用斜角動線、拆除隔間的方式,來將坪效發揮得極致。
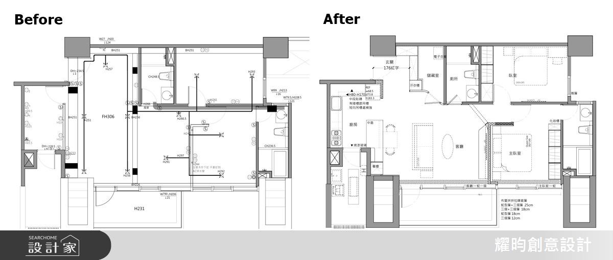
1.廳房需求:原先兩房兩廳的配置,完全壓迫廊道空間,廚房也過於封閉。
2.風格需求:擁有乾淨不複雜的空間,讓獨居女子可以輕鬆休息。
3.收納需求:露營、登山健走和滑雪等戶外運動用品,需要有地方擺放。
重點1:原建商格局沒有玄關,透過設計將原本尷尬的餐廳位置變為玄關及儲藏室,符合屋主需求。
重點2:原建商動線邊角多、空間封閉,重整格局後,輔以弧形線條和 45 度開口,使原先擁擠的動線入口變流暢。
重點3:拆除原封閉式廚房,改為開放式廚房,更符合屋主在家工作的放鬆感,及親友來訪的互動性。

原先建商設定的格局,一進門就是餐廳位置,旁邊則是封閉廚房,導致空間變得呆板機能弱、動線上邊角多,又有大樑壓迫的問題,甚至客廳底端硬隔出的一間房,反而壓迫到走廊。因此,耀昀創意設計總監蔡昀璋重新修改建商配置的房間尺度,並透過弧形線條和 45 度開口,使原先擁擠的動線入口變流暢,而廚房的封閉牆面也予以拆除,改為開放式中島廚房,巧妙破除格局必須方正的迷思,將真正的坪數還給單身女子,為她帶來開闊明亮的日常光景。
1.玄關
原建商格局並無設定充足的玄關區,但屋主期望有一個儲物空間,讓戶外運動用品能被收納,總監瞭解需求後,大膽將原本的餐廳位置,變成玄關落塵區、收納櫃及儲藏室,炸出一個海量收納、機能十足的玄關,讓空間機能更符合屋主的儲物所需。玄關則以素色板材為主,搭配大理石紋地板,表現低調奢華的視覺風格,又方便獨居的她做日常整理。



2.客廳
客廳走廊牆面原本樑柱明顯,易產生壓迫感,改以弧形線條包覆,弱化樑柱存在感,弧形線條更柔和,與弧形天花相呼應,虛化難以避免的大樑,讓客廳比建商的預設格局看起來更加挑高寬敞。




3.餐廚區
封閉式廚房難以與外界互動,多一道牆面也讓家看起來更小,因此拆除 25 坪住宅的封閉廚房牆面,新增一座中島吧檯,使開放式廚房得以串聯客廳,空間超放大,光線也得以穿透,並為單身屋主設想完整的生活行程:早晨可以在中島慢慢享受餐點與咖啡;想工作時就能在白色石英石檯面打開電腦處理專案;午後小憩時可以到墨綠色磁磚襯底的展示櫃,拾起書籍閱讀;傍晚時分,又能從 L 型廚具中,拿出鍋碗瓢盆、調味料來烹飪,而順暢的料理動線,讓屋主可以迅速端出佳餚,轉身就在中島招待前來拜訪的友人。



4.臥室
原本主臥格局尺度較大,導致廊道壓迫到局部公領域,動線不順暢,視覺也突兀,微調主臥空間尺度後,讓臥室回歸優雅放鬆的休憩場域,在床尾新增一整排衣櫃,滿足女生豐富的衣物收納需求,床頭牆則運用莫蘭迪綠,達到簡易的跳色效果,細膩地用低調配色,讓獨居的她能夠睡得安穩放鬆。縝密的盤點屋主需求,將預算妥善分配,主要配置在公領域設計,滿足屋主期待,私領域也能獲得專屬的Me Time時光,自在又愜意!

