提醒你
本網站隱私權政策已於2018年7月20日更新,請至閱覽並同意新版隱私權政策,若您未勾選同意而繼續使用本網站,則視為您已同意新版隱私權政策。
屋主期望將台北市精華地段的老屋全面翻新,之前常有旅居海外的經驗,對於住宅空間的想法也比較開放多元,也因為常在YOUTUBE上觀看影片,決定將此次老屋改造的難題,委託具有建築背景且擅長以斜角度將坪效放大的將作空間設計總監張成一,彼此溝通需求與想法後,先盤點老屋陰暗、格局零碎、漏水等問題,跳脫制式設計,以斜角設計佈局空間,營造開闊的空間感,並延攬101景致入內,輔以弧形設計、多元材質及完備收納,讓室內15坪的空間,實現明亮、寬敞舒適及機能滿分的理想居所,還能時時欣賞台北知名地標101大樓日與夜的變幻美景。

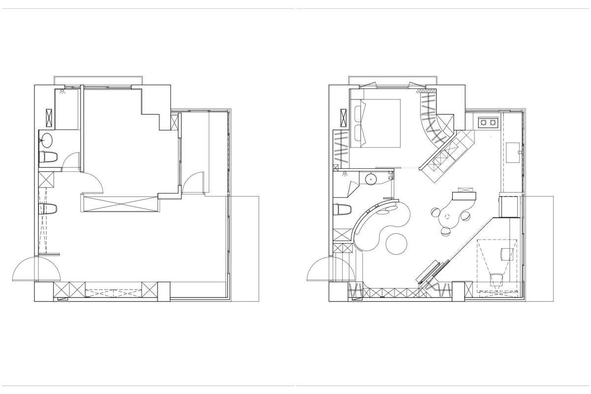
雖原始空間為方正格局,空間有限,一刀劃分為二的空間配置,並不符合屋主使用,也只有一房的配置,空間使用相當受限,同時,隔間不僅增加壓迫感,也阻擋採光及視野,詳細溝通需求後,破格思考讓設計回歸居者生活本身,以形隨機能的設計理念,重新定義空間,達到最佳化的室內佈局。
拆除原有隔間,創意斜角設計的空間配置及動線安排,集結眾多優點,第一,能創造出最長的對角線,優化室內各空間的視線與窗外101景致的互動關係,不論身處哪個空間,都能享有開闊視野,邊做菜還能邊欣賞101的美景,美味料理更加分,其次,巧妙斜角設計也為15坪空間創造2房的空間,符合更多元、更彈性的生活情境使用,最重要的是,創造回字型動線,將住宅升級為景觀動線,為日常生活帶來驚喜的小確幸。


玄關入口規劃收納櫃體,方便收整鞋子及物品,平台也可展示收藏品或擺放鑰匙、香氛等小物,另一側安排全身鏡,便於在出門前打理儀容,鏡面材質反射,延展空間尺度,具有放大空間的效果,巧以霧面玻璃屏風界定玄關與客廳,暗示場域分野,視覺豁然開朗,斜角設計讓客廳的視野倍增,轉化為全面的採光視野。


沙發圓弧背牆同時也是衛浴的牆面,一牆兩用共享圓弧牆面,坪效超放大,圓弧曲面視覺柔和,牆面嵌入灰玻,光線流動,牆面也更有層次感。全身鏡旁導弧形木紋,白色懸浮櫃體延展至客廳電視牆,滿足海量收納,為小宅創造美感與實用兼備的質感生活。


公領域原有的結構樑柱,無法更動位置,此時若用制式方桌,會產生阻斷動線及光線的問題,因此,特別訂製圓弧餐桌,環繞著柱體,形成流暢的回字型動線,視覺通透無阻礙,新增書房打造L型書桌,以長虹玻璃拉門取代制式隔間,減少空間封閉感,具透光性與靈活度,讓書房也能一秒變身客房,符合多元生活情境使用。




移動廚房位置,讓屋主一邊做菜也能一邊欣賞窗外101的迷人風景,原一字型廚房沿著壁面擴展為ㄇ字型廚房,使用檯面為原本的3倍大,並將廚房下櫃結合洗衣烘衣機,符合屋主在國外的生活習慣,順暢使用動線,整合料理工作檯面、櫥櫃收納及洗衣盥洗區,機能超強大。


將原本的衛浴空間移動,還給主臥全面的景觀,空間感也隨之放大,臥房床頭注入中性的灰色調,圍塑放鬆的休憩空間,床頭背牆隱藏衣櫃,床尾弧形訂製櫃也隱藏了突兀的畸零空間,提升收納實用機能,讓生活有條不紊。浴室變更位置後,空間也較原本放大,乾溼分離讓浴室空間易於維持乾爽整潔,長型洗手台與鏡面的配置,在燈光的烘托下猶如星級飯店般高級,寵愛沐浴時光,側邊牆面也因應屋主需求增加收納空間,加裝除濕抽風設備,即使浴室無窗,也能保持乾燥,浴室玻璃折門,透光不透視,光影穿透又能確保隱私,全方位改造一次解決老屋常見的陰暗、通風、格局與收納不足等問題,讓日光盈滿新居,重拾美麗容顏,陪伴未來的每一天。


