提醒你
本網站隱私權政策已於2018年7月20日更新,請至閱覽並同意新版隱私權政策,若您未勾選同意而繼續使用本網站,則視為您已同意新版隱私權政策。

座落於嘉義市東區的90坪透天別墅,為屋主一家的幸福新居。屋齡8年的中古屋面臨格局破碎、機能薄弱的窘況,一家四口期望能建立一處機能齊備且兼具風格的理想居所,於是與唯光好室 VHouse 攜手,展開這場從「格局重塑」到「材質轉化」的空間革新之旅;為了符合夫妻倆心目中的期待,透天宅內揉捻了俐落的現代工業風與唯美的古典氛圍,由地下室至五樓,每一場域皆承載著不同機能與情感,不僅於剛與柔之間取得最和諧的平衡,更詮釋了生活風格與空間機能的自在對話。
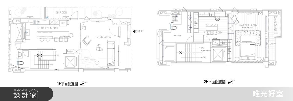
步入一樓公領域,設計師以開放式設計為主軸串起客餐廚三大場域,設置一道通透的玻璃拉門,巧妙界定了客廳及餐廚場域間的分野,不僅兼顧共享充沛日光及開闊視覺等優勢,更杜絕了烹飪時油煙亂竄的困擾;客廳電視牆鋪敘浪漫的藕紫色板材,無形昇華了量體的輕盈感,更消弭了樑柱的存在,沙發背牆則使用灰階特殊塗料為基底,搭佐沉穩石紋及俐落的鐵件層板,讓鋼琴巧妙地融合在居家空間內,更化身休憩客廳的視覺焦點。


由於建商附設的廚具收納空間不足,透過重新調整收納櫃的寬度與高度,讓鍋具器皿擁有專屬的放置空間,同時客餐廳間的閒置角落也設置了茶水櫃及衣帽收納區,而中島延伸餐桌的型態,不僅形塑了彈性的回字型動線,下方更增設了簡易的烘碗機,公領域的機能性大幅提升!

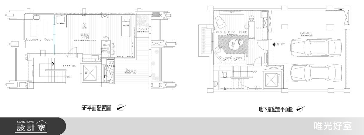
地下室原先是閒置的臥房與車庫,為了提升使用坪效、並實現屋主在家也能觀賞電影的心願,設計師拆除既有的牆面且重新調配格局,將臥房改為獨立的視聽室,並以隔音材質包覆牆面,打造沉浸式的觀影體驗。

特別之處在於男主人熱愛Michael Jackson,設計師將這股熱情轉化為空間的靈魂!視聽室鋪敘了大面的復古鐵道磚,更以LED燈帶描摹Michael Jackson的經典舞姿作為亮點,讓人一踏入空間,就能感受到如同舞台般的視覺張力,視聽室更設置了Mini Bar機能,讓男屋主盡情品嚐美酒、放鬆身心,而地下室更升級成具有影視及娛樂機能的家庭影廳。

二樓主臥空間同樣肩負著重大任務——如何滿足屋主對收納的高需求與作息上的分區。設計師依據男女主人不同的生活節奏,在主臥為女主人規劃獨立更衣室,並強化主衛浴使用機能,加大淋浴區面積並設置雙洗手台,構築機能與質感兼具的私領域。


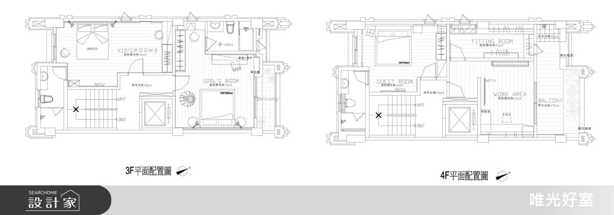
而四樓則成為男主人的個人天地。他不僅有大量鞋款、古著與配件收藏,更需要一處能兼做工作室與休憩區的空間。於是,設計師在四樓後半段規劃了齊備的更衣室機能,工作區旁則增設了觀景小花園,讓男主人在處理工作事務之餘,也能靜心休息、享受綠意。

這兩處的收納空間在材質上也展現不同性格:女主人的更衣室以奶油白與柔和木紋呼應古典風的溫柔優雅,男主人的更衣間則運用鐵件、深色木皮與造型燈具,營造濃厚的工業感。兩者雖各自獨立,卻共構出和諧又實用的私領域配置。
最後,位於五樓的陽台空間,則被定義為居家健身房與家事間的多功能場域,除了設有完善的排水與曬衣機能外,更滿足了夫妻倆瑜珈與拳擊練習的運動需求,透天別墅的陽台,藉由自然植栽與牆面綠化,讓健身過程中也能與大自然舒適對話。



