提醒你
本網站隱私權政策已於2018年7月20日更新,請至閱覽並同意新版隱私權政策,若您未勾選同意而繼續使用本網站,則視為您已同意新版隱私權政策。
根據資料顯示,2025 年第 1 季購屋貸款中,選擇屋齡5~15年的中古屋比例約 9.97%,而屋齡超過16年的老屋占比則高達36.83%。此數據反映出房價持續高漲、民眾購屋預算吃緊的現況,在有限資源下,許多買方轉而選擇價格相對親民、地段條件佳的老屋。然而,老屋在安全、結構與機能上往往有潛在風險,裝修前更需通盤檢視與謹慎規劃預算配置。透過本篇設計案例,我們將探討設計如何回到生活本質,細緻梳理每位住戶的使用習慣與日常動線,將資源投注在真正有價值的地方,讓每一分預算都轉化為家的舒適與實用。

購買屋況較好的老屋或中古屋時,屋主通常傾向於保留既有格局,將預算重心配置於基礎工程,加上考量中古屋廚房與浴室多需翻新,我們能依據使用需求進行格局局部調整,有效降低整體翻修成本,同時提升空間舒適度,面對有限的坪數,審慎考量居住人數與生活需求,妥善分配預算,透過精準設計滿足每一位家庭成員的期待。
1. 希望以木質調為主的質感空間:屋主喜愛輕奢風,加入溫潤的木質調元素,將優雅的輕奢氛圍烘托的更柔和、更有深度。
2. 老屋需修飾大樑,解決廊道4房門對門的問題:大樑以圓弧造型與條燈修飾,圓弧拱門虛化樑柱壓迫,具有迎賓的意象;老屋廊道原本陰暗幽長,存在4個房門對門的風水疑慮,亟待解決。
3. 增加各區收納:三代同堂家庭物品眾多,需妥善收納,女主人衣服多,主臥也需多一點收納空間。
重點1:巧用材質特性,打造高格調的輕奢風─風水考量需納入木質調,由於原木略顯沈穩,用珍珠色澤特殊塗料去呈現珠光顆粒感,輕奢風能輕化木質的深色,讓輕奢風跟木質和諧共融。
重點2:圓拱造型與條燈修飾,象徵拱門迎賓─好客的女屋主期待家人溫馨互動,也希望親友感受賓至如歸的自在,客餐廳大樑以圓拱造型修飾,宛如一道微笑的任意門,引領親友進入,友情與親情在此凝聚,每一次相聚都將成為屋主最美好的回憶。
重點3:美型展示收納,機能與美學兼備─公領域畸零空間以格柵線條、弧形展示櫃挹注時髦品味,主臥運用客製化系統櫃整合床頭牆及化妝台,細節到位。

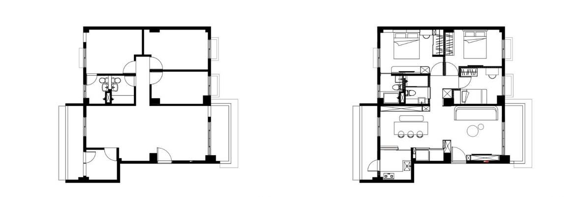
1. 玄關:
原始玄關並無特別區分空間,室內外較無界定,鞋子沾覆的灰塵容易帶入屋內,也無充足的鞋櫃可收納一家人的鞋子,需新增收納櫃體。老屋改造後,玄關以灰色石紋薄板與客廳木地板形成場域區隔,頂天立地的鞋櫃、整合式茶鏡提供高效收納與整裝便利,玄關櫃體順應ㄇ型門拱一路延伸,展現一氣呵成的流暢感,而電視牆櫃體巧妙運用空間深度,跳色的開放層架,一進門可隨手擺放鑰匙等小物,符合使用習慣。



2. 客廳:
原本空盪的客廳,完美融入屋主想望,使其成為一個能滿足所有期待的空間。在風水考量下選用溫潤木皮,並巧妙地結合具珠光質感的塗料,營造出和諧的視覺層次,細緻的玫瑰金線條與木格柵相互交織,為空間注入一股低調卻奢華的氣息。電視牆下方運用灰玻,藉由燈光投射,宛如懸浮的輕盈視感,客廳沙發背牆與ㄇ型門拱,皆以大面積特殊塗料鋪陳,巧以燈光勾勒居家輪廓,打亮並凸顯材質的質感,與木格柵線條襯托,空間立體感倍增。珠光質感的塗料,自然紋理在光線下時而閃耀,時而低調,日夜綻放不同美感,細膩詮釋了屋主不凡的生活品味。





3. 餐廳及廚房:
餐廳徹底改造,摒棄老舊木作與不合時宜的風格,用現代輕巧的系統櫃取代,避免傳統櫃體的滿版設計,局部點綴茶鏡,讓空間更顯輕盈,為了滿足社交需求,配置大型餐桌,搭配「口」字型動線,確保空間動線流暢且賓主盡歡。門後不規則的畸零空間,以圓弧拱形櫃體設計,增添展示功能,大門旁的柱子轉化為造型拱門,利用深度增加收納櫃,木格柵拉門蘊藏儲藏室與冰箱,隱藏設計視覺清爽,透過格柵線條與弧形展示櫃的巧妙結合,為整體空間注入一股時髦且獨特的品味。





4. 主臥&主浴:
為了滿足女屋主的收納需求,將孝親房的牆面內推,爭取更開闊的空間感,同時,也重新調整了臥房入口位置並縮短廊道,提升動線流暢度,也成功消弭風水疑慮,主臥配置上下式收納櫃體及衣櫃,足以妥善收整大量衣物,櫃體收邊導圓弧,視覺柔和,提升安全性。考量到主臥深度有限,設計多功能床頭櫃,使其與牆柱切齊,最大化利用空間,床尾仍可擺放電視,創造理想的專屬休憩場域,主浴設有內嵌式浴缸,溫潤木紋磚搭配沈穩的灰色牆面,讓屋主在忙碌之餘,能在自然和諧的私密空間中,盡享泡澡的樂趣。




5. 客浴:
原始浴室受限於小尺寸磁磚及發霉溝縫,且缺乏足夠的鏡櫃收納,老屋翻新後,浴室煥然一新,改以大面石紋質感磁磚鋪陳,搭配訂製洗手台與浴櫃,不僅檯面空間大幅擴展,便於分類收納各式備品,即使身處寸土寸金的台北市區,亦能將美感與機能完美融合,升級為飯店般的精緻質感。


