提醒你
本網站隱私權政策已於2018年7月20日更新,請至閱覽並同意新版隱私權政策,若您未勾選同意而繼續使用本網站,則視為您已同意新版隱私權政策。

當人生步入下半場,理想的家是能承載歲月、又能輕擁日常的地方。這間位於高雄核心地帶的老屋,儘管坐擁便利的地理優勢,卻曾因採光與空間侷限而顯得沉悶。城藝空間設計黃淑菁總監選擇放下制式的框架,用「心」觀察居住者的每一個轉身。不只是修繕,更是重塑,將封閉的隔間化為開闊的流動,讓陽光重新住進家裡。在這裡,無障礙不再是冰冷的設計規格,而是一種對未來的深情守護,讓美感與實用交織成最舒心的退休生活。成立近 20 年的城藝空間設計,堅持「0 糾紛」原則,從工程品質到溝通細節皆層層把關,用心傾聽每一位屋主的期待,並重視長期維護與使用體驗,專業實力與高度責任感,贏得眾多客戶回訪與推薦,現在就跟著我們一起細賞這間退休美宅設計的精采之處吧!

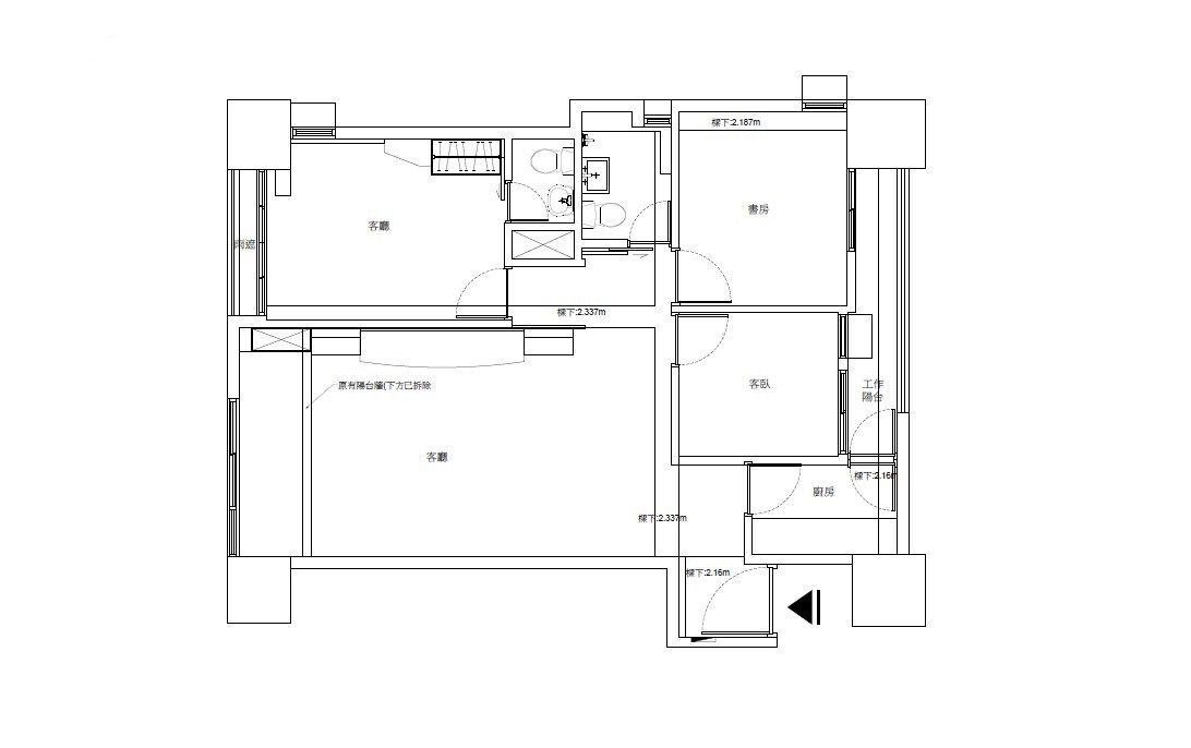
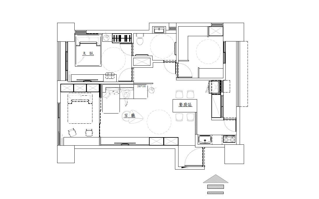
為了讓光能住進家裡,重新梳理了空間的呼吸。格局原為3房2廳2衛轉化為2房2廳1衛,原本封閉的格局在結構技師的評估下,褪去了遮擋光線的牆面,讓陽光能從窗邊的多功能房出發,一路輕盈地穿過客廳,抵達家人的餐桌。從 3 房改為更寬適的 2 房,不只是空間的減法,更是心境的加法。總監分享:「我們希望創造出比實際更寬廣的空間感,讓居住者生活其中,每一天都能擁有舒暢開朗的好心情。」

歲月在 30 年的老屋牆上留下了痕跡,揭開舊壁紙,面對的是壁癌與地坪不平的考驗,逐一妥善處理,為家找回健康的根基。為了讓退休後的沐浴時光更為從容,也投入了許多心力與管委會悉心溝通,終於將2間侷促的小廁所,蛻變為一間寬敞通透的療癒浴室,告別了過去的壓迫,從此以後,在家的每個移動都變得流暢而優雅,不再有壓迫感,只有滿滿的舒適與安心。

在客廳的一角,保留了一處能與陽光對話的地方。架高的多功能空間,坐擁大面採光,最適合在午後靜靜地曬著太陽、品一盞清茶,或是在書香中度過悠閒時光。這裡也是親友相聚時的暖心客房。溫潤的木質天花與拉門,輕柔地勾勒出空間的邊界,卻依然保有視野的通透,讓家顯得既豐富又寬心。

真正的自由,是生活在其中卻不覺限制,考量到未來的日常需求,將空間的寬度還給居住者,確保全室通道都擁有 90 公分以上的寬裕與流暢,客廳的核心地帶,更細膩地勾勒出直徑 150 公分的迴轉半徑,讓陽光與行動都能無礙通行。沒有起伏的門檻設計,消弭了絆腳的隱憂,28 坪的退休宅讓人在安全無虞的環境中,體會生活的小確幸。
設計師也在水槽下方、中島餐桌下留了一片貼心的空白,少了櫃體的阻隔,輪椅能溫柔地靠近洗手台與桌面,讓屋主能依照自己的節奏自在操作,保有生活最珍貴的獨立與從容。考慮長輩操作電器的安全性,特別規劃的單切電源系統,讓長輩不再需要辛苦地彎腰拔插頭,不必反覆拔插、不必費力拉扯,只需輕輕一按,便能簡單切換,掌握四組電器的電源,化繁為簡的設計,讓餐廚區成了全家最安心的角落。

退休後的洗浴時光,應該是優雅且安全的,打破原有的狹小限制,創造出一處兼具美感與無障礙設計的大尺度浴室。空間的淨空與 150 公分的迴轉半徑,賦予了使用者最大的行動自由,而不鏽鋼安全扶手的配置,則是在細節處默默守護,灰色特殊漆營造靜謐的質感,讓這處衛浴空間不僅實用,更透著一份高級的恬靜。

屋主對退休生活的憧憬,是一處既能放鬆心情,又帶著點奢華氣息的優雅居所。設計師巧妙運用黑白大理石的層次與金屬材質,層層堆疊細膩質感,在客廳牆面譜寫出一首優雅的詩。全室鋪上觸感溫潤的木地板,每一步都踏得安穩,也讓掃地機器人能輕鬆代勞。從大理石、細膩木作、到美耐板與系統櫃規劃,每一份異材質的拼接,都是為了平衡機能與美感。
在餐廚空間的交界,巧用輕盈的造型玻璃磚取代原本厚實的RC承重牆,這道晶瑩的屏障,在結構技師的專業守護下,完美承載了家的重量,更邀約了光線在空間裡自由穿梭。玻璃磚特有的透光感,讓下廚與用餐的心情都亮了起來。

主臥室延續公領域的簡潔與細膩氛圍,床頭上方的窗戶,以活動門片取代了傳統窗簾,與牆面融為一體的活動門片,維持了空間視覺的流暢美感。白天,推開門扉,擁抱採光,夜晚,輕輕闔上,將喧囂留在窗外,許自己一個寧靜的夢。

主臥衣櫃、床頭櫃與一日衣櫃巧妙結合,透過職人純手工訂製的質感,讓化妝台與櫃體散發出獨一無二的手作溫度。更衣室也實現屋主心中的飯店夢想,清爽俐落的櫃體設計,衣物配件一目瞭然,充足的收納量藏起生活的瑣碎,讓人感受到退休後居家生活的自在與從容。

