提醒你
本網站隱私權政策已於2018年7月20日更新,請至閱覽並同意新版隱私權政策,若您未勾選同意而繼續使用本網站,則視為您已同意新版隱私權政策。

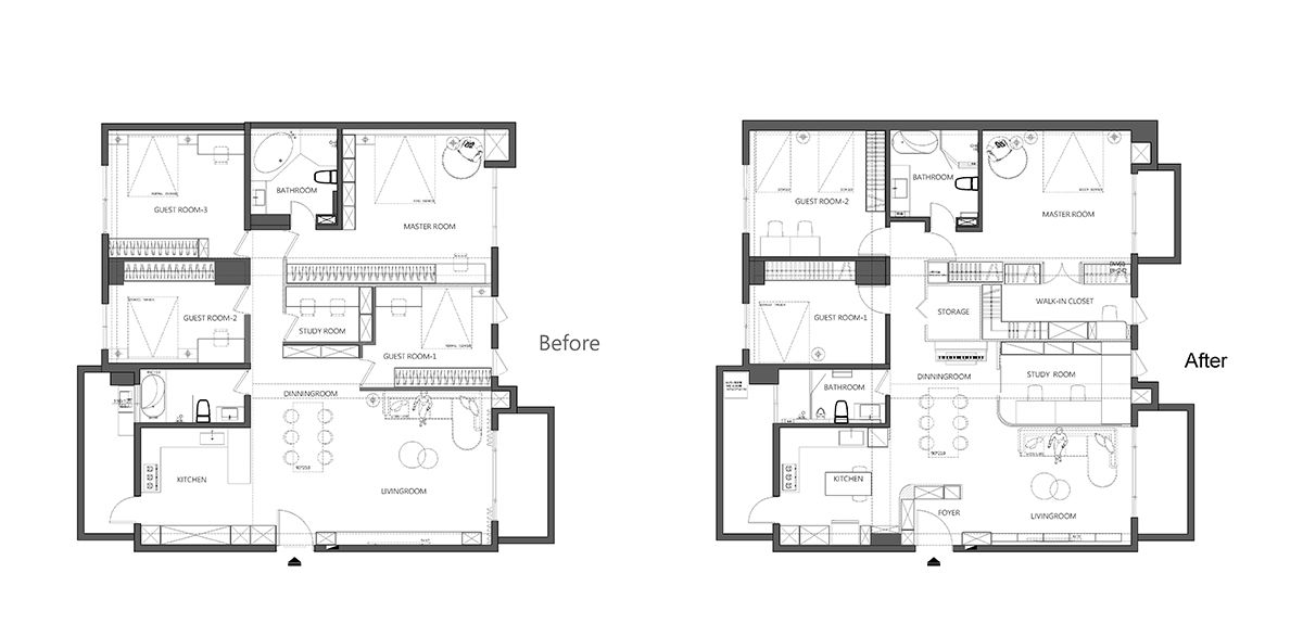
中古屋翻新不僅是風格轉換,更是一場精準的「預算配比」挑戰。本案位於潮濕的林口,面對 15 年屋齡的關鍵期,設計師將 1/4 預算優先投入基礎工程,針對管線更換與高功率電線迴路進行升級,並透過天花板重作整合全熱交換器,為全家人建構未來 30 年的健康基底。在格局改造上,本案捨棄大拆大建,透過「微調」手法滿足生活需求:為主臥打造專屬的獨立更衣間與飯店級四件式衛浴,並利用玻璃帷幕將昏暗客房改造成光感書房。設計美學則以現代風格串連輕法式線板,運用弧形語彙與人字拼木地板,讓 45 坪空間在機能與浪漫之間取得完美平衡,實現美感與實用兼具的混搭風宅邸。
一般管線大概撐15-20年,這間中古屋大概也是十五年上下,屋主是一對夫妻加兩個小孩,因為不會再換大房子,預計會在住20-30年。主要將兩間浴室管線換新,精準掌控預算。浴室防水全數換新。這間中古屋原本的電線都是2.0的線徑,僅針對除濕機、全熱交換氣等高功率家電增加專用迴路,因此基礎工程佔據約總裝修預算的1/4,可以更有餘裕建立中古屋翻新風格。天花板則全數拆除重做,設計師認為是必須!因為天地壁是空間改造重點,,加上本住宅位於潮濕的林口,要加裝全熱交換與廚師要將管線隱藏於天花板,得以調整好中古屋基底,建構出完整立體的概念。
針對此中古屋基本上格局已微調為主,唯一比較大幅度變動是落在主臥與鄰近的一間臥房。由於屋主想要主臥有更衣間,所以將原本的客房拆除,分別分給主臥與客廳後方的玻璃書房。在重新規劃格局時,從屋主最想要的空間著手,本案女屋主最重視主臥與主衛浴空間,因此做了上述的格局調配,讓女屋主在床尾可以擁有一個walk-in closet,同時保持四件組衛浴。
另外,原本的客房一部分用來打造書房,也是因為男主人還是希望有一個空間上獨立的工作空間,同時也可以作為兩個孩子閱讀寫作業的書房。而原本小型的書房則改為儲藏室,讓生活雜物有妥善的存放空間,也讓原本的沒有面窗的昏暗書房,改為以玻璃帷幕打造的光感閱讀空間。這間45坪中古屋雖然廳房數量一樣,但是透過格局的微調提供更好的空間利用。

.主衛浴重做:
原本是角落型的浴缸,討論過後改以屋主夢想的獨立式浴缸;利用轉角規劃多邊形淋浴間,內部有壁龕設計;牆壁跟地板都用同一塊磚創造整體感、視覺延伸不會被切割,建立出飯店級四件式浴室的奢華大氣感。雖然今年很流行用塗料創造無縫衛浴,但因為台灣亞熱帶氣候潮濕多雨,還是有發霉的風險。像本案浴室沒有開窗所以所以採用塗料更難以維護,而鋪貼磁磚既好保養、也具備止滑效果,同時磁磚厚度0.8-1cm之間,台灣位處地震帶只要預留好伸縮縫,也不會像塗料一樣產生龜裂。

.獨立更衣間:
因為床尾用獨立更衣室為長型空間,非常適合設計雙開門,門扇打開剛好在櫃體兩側,克服長型格局,剛好畫分左右動線,妥善規劃長型空間的動線。入內後往左面窗出規劃化妝台,向右則是帶有線板裝飾的衣櫃;櫃體五金有特別挑選與美式風格做搭配,採光窗加裝白色百葉,在私領域滿足女屋主追求浪漫的個性。

.玻璃書房:
原本中古屋也有規劃書房,但是位於靠近私領域走道、沒有採光窗的小空間。設計師將原本的客房拆除後,利用1/2的客房空間加上挪用一部分客廳深度,打造出一間寬敞而擁有採光窗的書房空間。書房隔間採用整面玻璃帷幕取代隔間牆,銳利的轉角改為弧形設計,不僅讓空間更柔和、提升居家安全性,同時也透過弧形語彙串連整體設計。

①弧形設計:
空間中都是帶有功能性的弧形,像是玄關後方鞋櫃有圓弧設計,有引導性天花板的弧形設計有水平跟垂直面向;電視牆上面是大樑,所以用垂直的弧形修飾樑柱;天花板的弧形曲線能鑲嵌燈帶照明,讓人工光源更柔和更有氣氛。書房採用有弧形玻璃帷幕,消弭銳角增添居家安全;沙發半牆用塗料做弧形跳色的巧思,私領域的玻璃展示櫃與通往獨立更衣間的雙開門,都是帶有功能性的弧形設計。



②色彩計畫:
原本的屋主電視牆用洞石,設計師建議保留,表面石材美容就可以沿用,呼應現代侘寂感的設計,有洞石、塗料、奶茶色。電視牆搭配灰色金屬烤漆做跳色搭配。全室色溫選擇3000K,與奶茶色空間搭配呈現更溫暖的生活氣氛。而人字拼的方向性如何選擇?因為格局往走到來講是長型的,所以長型是往電視牆的方向走,依照室內動線來鋪陳,會更能凸顯空間尺度。


③鏤空設計:
針對空間是否適合做鏤空設計?設計師會先問屋主對於家中清潔的習慣、因為鏤空會比較不好清潔,有小孩會有很多小孩作品、也會購買旅遊紀念品,所以可以做很多鏤空做為陳列,家裡很大可以做、家裡很小就不建議。本案在玄關屏風櫃做鏤空鑲嵌霧玻璃、書房層架的鏤空、主臥有玻璃展示櫃,透過鏤空設計可以降低櫃體壓迫感,同時也可以讓收納變成一種居家裝飾。



①風格混搭:
客廳主要以現代風格,簡化那些繁複的線條,改以弧形語彙串連開放式場域,讓設計有連續性,公領域中比較有紋理的地方是人字拼木地板,沿著空間動線排列增添客廳尺度。私領域選用比較多線板,天花板多層次線板,尤其實在主臥上面採用堆疊鮮版勾勒天花板,櫃體也加入線板、法式拱門作為獨立更衣間入口。主衛浴的整體空間以同一塊磁磚鋪設牆面與地板,更顯整體主衛浴的寬敞感;而浴櫃則加入線板設計與金色五金手把,呈現出輕柔的美式風格。公領域與私領域雖然採用不一樣的風格混搭,但是透過色彩的統一、以及弧形設計建構出整體設計語彙,讓兩種風格自然混搭相融。


②軟裝設計:
客廳硬裝上整體是比較硬質地的風格,所以軟裝上選擇比較柔軟的質感,落地沙發、布面有慵懶感,茶几也是圓弧造型。進口餐廳吊燈選用鐵件跟黃銅,搭配240cm大餐桌、椅凳與長凳滿足宴客需求。選用進口燈具雖然價格比較昂貴,但當親友一起在餐桌用餐閒聊時,燈飾也可以成為新家裝潢一個不錯的話題。廚房則保留原本的百萬廚具、透過包膜貼皮的方式讓舊有的廚具可以和新的設計風格接軌,替屋主省下預算同時又達到理想的裝修成果。

