提醒你

本網站隱私權政策已於2018年7月20日更新,請至閱覽並同意新版隱私權政策,若您未勾選同意而繼續使用本網站,則視為您已同意新版隱私權政策。

登入 / 註冊

會員登入

網友 / 設計師註冊

首頁 > 找文章 > 設計師撇步-私房秘技 > 挪移空間貼近使用者需求_兩戶合併篇

挪移空間貼近使用者需求_兩戶合併篇

文_張麗寶
提問人:張太太 職業:家管 家庭成員:5人 坪數:150坪 地點:台中縣
 
屋主提問:
老胡設計師您好:
因為大兒子要結婚了,買下隔壁的房子,我們家人感情很好,所以想要將兩戶打通,但又希望彼此有獨立的生活空間,生活動線要各自獨立,我和先生及尚未成家的二兒子住在一起,大兒子和即將入門的媳婦住在另一邊,不知道格局要如何配置,才能滿足我們想要住在一起,生活起居又不會相互干擾時需求,想請設計師幫我們的格局重新配置。
 
設計家,searchome,
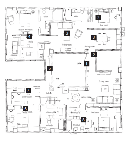
Before平面圖
 
專家解答:
兩戶打通做為兩代的生活空間,正是時下流行的兩代宅,如何能讓兩代人可以有自己的生活空間又能相互照顧,是此格局配置的重點。由於兩戶都是張太太自宅,所以就將兩戶的大門設在外玄關大門共同進出,原外玄關就成了進入兩戶的內玄關,左邊規劃為大兒子成家後居住的空間,有獨立的客廳及餐廳、客房、客用浴室,主臥室則規劃在後方,將原後陽台納入主臥空間,規劃為有書房、睡眠區、主臥浴室、更衣室,如飯店商務套房;右邊則為張太太和另一個未婚的兒子居住,一樣有獨立的客廳、餐廳,將原2間臥房打通規劃為如大兒子的飯店式主臥。至於廚房則兩戶共用,雙向門可以供兩戶進出,這樣就可以滿足張太太想要住在一起又各自獨立的兩戶代規劃。
 
平面圖診療專家 老胡
現任 裝潢便利通Easy deco資深設計師
強項空間 老屋、單層大坪數、樓中樓、預售屋
強項風格 美式新古典風格
 
設計家,searchome,
After平面圖
 
平面圖診療報告
1.原兩戶外玄關大門合併成為共用大門。
2.原外玄關則變成內玄關。
3.左邊則為大兒子的生活空間有獨立的客廳、餐廳、客用浴室及客房。
4.主臥則納入外推陽台並規劃有書房、浴室、更衣室的飯店式臥房。
5.廚房則為共用,有雙向門可以通往兩邊。
6.將右邊兩間臥房合併成為大主臥。
7.書房則為共用。
8.小兒子的房間則規劃臨客廳處。
 

更多格局規劃小撇步--請看裝潢維基百

兩戶打通,但又希望彼此有獨立的生活空間,生活動線要:漂亮家居powered by設計家

Loading