提醒你

本網站隱私權政策已於2018年7月20日更新,請至閱覽並同意新版隱私權政策,若您未勾選同意而繼續使用本網站,則視為您已同意新版隱私權政策。

登入 / 註冊

會員登入

網友 / 設計師註冊

首頁 > 找文章 > 設計師撇步-私房秘技 > 三房兩廳有什麼樣的平面變化呢?預售屋篇

三房兩廳有什麼樣的平面變化呢?預售屋篇

文_張麗寶
提問人:洪麗貞 職業:保險 家庭成員:2人 坪數:35坪 地點:台北市
 
屋主提問:
設計師,您好!
我買了預售屋,快要蓋好了,可能近期會交屋,之前我有跟建商做過客變,變更了水電配置,還有改了浴室的門,這部分是找我弟弟,他那時作水電學徒,沒有請設計師幫忙規劃,現在房子快要交屋了,有些部分我不知道怎麼規劃才好,看到你們有詢問服務,所以來信請教!我想要請問怎麼做出玄關?還有我沒有煮菜,餐廳區想要變更成做瑜珈的地方,變成客餐廳在同一個地方,不知是否可行?還是應該維持餐廳區。住戶可能是1至2人,有考慮將來要生小孩,目前還只是情侶檔,短期內還不一定結婚,兩個次臥室,緊鄰客浴的,預計規劃成書房,另一間則為客房。另外,客廳外是八米的馬路及人行步道,因為地勢有點小緩坡的感覺,不知沙發應該是擺放在客廳進門或門口對面?不知哪個比較好?收納也不知道怎麼規劃最好?進門旁的柱子說大不大,說小也不小也很麻煩。附上空間平面圖,還有客變後的水電配置圖,如果方便請你們給我建議。
設計家,searchome,
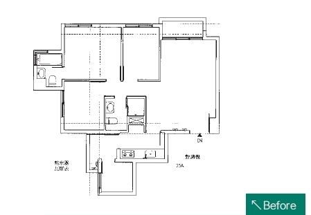
Before平面圖
 
專家解析:
洪小姐已經先做局部變更,加上洪小姐的預算有限,不建議再做格局的變動,所以重點放在玄關區及空間配置。玄關部份只要延伸門後的柱體規劃收納鞋櫃,並設計玄關隔屏,不僅可以解決原本洪小姐在意的柱體問題,也多了玄關的位置。餐廳建議還是規劃在客廳與廚房間,要做瑜珈時可以將桌子移開就好。書房及次臥則按洪小姐的需求分別規劃在客用浴室及廚房旁。至於沙發的位置,還是以客廳進門處最佳,這樣來客一進入室內也能立刻看到。
設計家,searchome,
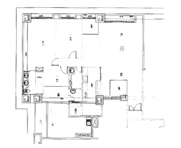
After平面圖
 
平面圖診療專家 老胡
現任 裝潢便利通Easy deco資深設計師
強項空間 老屋、單層大坪數、樓中樓、預售屋
強項風格 美式新古典風格
 
平面圖診療報告
1. 延伸門後柱體規劃玄關隔屏。
2. 柱體包成收納櫃滿足收納需求。
3. 主臥的收納以衣櫥為主,建議規劃在入門處。
4. 書房則規劃在客用浴室旁,並做大面收納書櫃。
5. 客房則規劃在另一間次臥,可如和室墊高做成通舖。
6. 保留餐廳,若需要做瑜珈只要移開桌椅。
7. 客廳沙發放置在入門處。

更多三房兩廳規劃小撇步--請看裝潢維基百科

我想要請問怎麼做出玄關?還有我沒有煮菜,餐廳區想要:漂亮家居powered by設計家

Loading