会员登入
网友 / 设计师注册
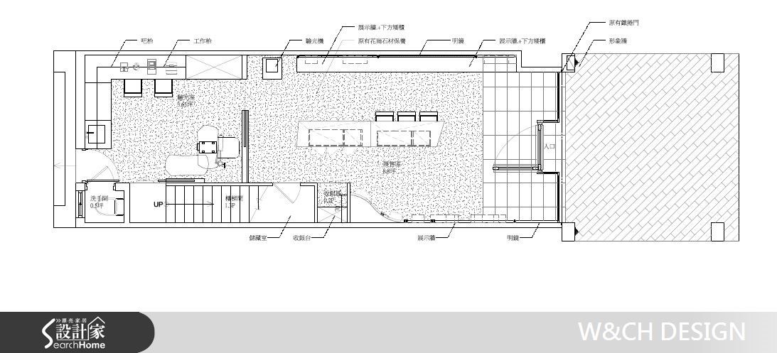
这是一间仅有49平方米的小区眼镜店,W&CH设计团队注入时尚品牌精神,利用石材及不锈钢等建材,刻画出几何线条,融入现代科幻感;一改眼镜店朴实印象,晋升为流行单品的潮流指标。【U字型流线展示台,时尚感上架】门口天花以不规则几何棱角向外延伸,与明亮照明互相交错,两侧柱体加上嵌灯,点亮晕黄灯光,塑造现代风十足的前卫印象。进入49平方米的店面,全然纯白的空间,善用铁件灯具与轨道照明营造立体感,为小巧空间创造深邃的视觉景深。店面虽小,却拥有井然有序的购物动线,经过前方接待厅后,U字型的角钢指示架即映入眼帘。店面中心则配置几何柜台区,拉近与顾客的距离;验光工作室隐身于烤玻拉门后方,使专业与时尚两方空间得以独立。左侧展示墙以清亮照明透出角钢镂空处,并破除生硬线条打造弯曲流线,循序镶嵌压克力板,成为富有创造力的独特展示区。右侧则以长型矮柜打造收纳机能,金属墙灯为镜面增添聚焦灯光,为顾客在试戴产品时,提供明亮照明。
纯白建筑×都会绿意!接待中心引入现代语彙,光影流淌共谱生活面貌
流畅动线×商空美学,打造具识别度、疗癒舒心的现代风诊所!
迎接职场年轻朝气!老建筑改造厂办空间,鲜明跳色唤起工作活力!
托付思念的宁静光影!步入无垠之界,细读生命的珍贵与消逝
开箱「流动式」的165平米商业空间!加入弧形+曲面元素,打造温柔又时尚的医美诊所
以设计惊艳味蕾,雅室牛排打造奢华用餐环境,满足全方位感官之旅
商空新型态:咖啡厅结合女性彩妆!曲面+弧线为现代风挹注柔美情调
裸│纯粹 Nudity│Purity
新烟厂Dream Lab
用建筑造境!大江大海的力道之美篆刻诗意
2021 TINTA金邸奖 延长征件至3/31,年度设计大奖等你来角逐!
推荐活动│烟火计划第三季-「春日人家」,邀你用设计定义家的温度
【征件延长至 3 月 31 日】2020 TINTA 金邸奖热烈报名中 ! 把握最后机会竞逐年度赛事