会员登入
网友 / 设计师注册
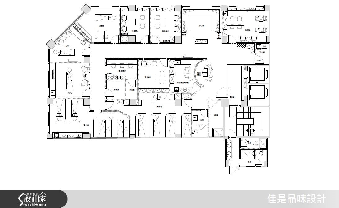
屋案原是超过40年的老屋,且改造前的格局并不符合业主的经营医美诊所的需求,再加上业主希望能跳脱一般诊所的冰冷氛围。因此希望藉由设计师独到的美感以及对于女性内心感受的细腻掌握,打造出宠爱女性身心的奢华风空间。 【善用镜面反光,金光宝蓝增奢华】此案空间虽大,但因机能与隔断需求也多,因此大厅的格局仍有局限。为改变狭窄大厅可能带来的局促感,设计师使用镜面设计来达到扩容的视感,使格局在视觉上得到松绑,更增添了大器之感。在色调上的安排,也因此案为连锁的医美诊所,所以在色彩规划也与总店呼应。以金色为主要色调,并由宝蓝色调搭配,营造出精致的古典氛围,让顾客能感受到熟悉感,却又有耳目一新的不同感受。此外,大厅的圆形图腾也是与总店的概念意象呼应,结合质感奢华水晶主灯,更创造令人印象深刻的惊艳之美。而设计师在空间其它区域也运用了相似的图腾样式,藉此营造出一致的美感和主题。更重要的是,设计师不只专注于奢华风格的空间设计。在重新整划空间的动线时,更是依照医美的疗程次序,将动线逐步的由外往内推进,藉由细腻的安排,让顾客能感受到尊贵的呵护。
光影为笔、空间为诗,次新房翻为新大地色奢华风住宅
宛如大气艺术殿堂的办公空间,大面石材包裹雍容精緻的沉浸式五星享受
品味时尚夜宴底蕴,隐身低调华丽的企业会所
用大理石凿砌华丽霸气!东方宫廷夜宴等级公司会所
重启老屋生命力,献给你的动人居家风景画
40年老屋华丽转身,放大空间的73平明亮宅
奢华风接待中心 定制专属的空间魅力
美型又安全,星级酒店般的母婴会所
告别高龄老屋,重整格局化身简约现代宅
颠覆想象的前卫奇幻乐园,造欢唱空间
2021 TINTA金邸奖 延长征件至3/31,年度设计大奖等你来角逐!
推荐活动│烟火计划第三季-「春日人家」,邀你用设计定义家的温度
【征件延长至 3 月 31 日】2020 TINTA 金邸奖热烈报名中 ! 把握最后机会竞逐年度赛事