每个空间都是立体的,可能很多人都忘了这件事。面对大多数保守的屋主,许多设计师的创意逐渐埋没在市场中。但冲着屋主一句” 一般的设计,我不要”,莳筑设计总监朱皇莳决定放手大胆地展现自己的创意,做出立体的居家空间。

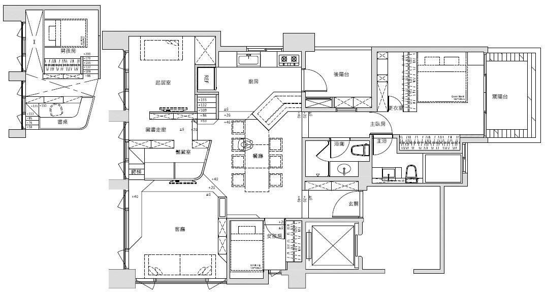
改变后的格局只是把厨房的吧台转个弯,连接至餐厅;再把客厅旁的方正隔断墙改成弧形,整个生活动线不但更顺畅,空间的”向上发展”,更创造出主卧室+更衣室、男孩房、女孩房、储藏室+书房,还有一间起居室。

平面图片提供 / 莳筑设计
新格局不仅比原本的四居室更多元,也提供了充满趣味性的变化,让挑剔的屋主也再也无可挑剔,一家四口都非常满意。至于设计师发挥了哪些巧思,又有哪些诀窍?赶紧与小编一起来看看!

立体图片提供 / 莳筑设计
【升降餐桌,餐厅变得好文青】
餐厅采用电动升降桌当餐桌,而且刻意分成三部分,可以依人数随时调整要升降的范围,而且40厘米的深度坐起来很舒适;尤其特别的是,架高的地板下都是收纳,采上掀式门片,收纳量相当惊人。

其次,餐厅主墙则以黑板磁性漆粉刷,架上男主人的爱车,不仅深具文青气息,小孩子尽情涂鸦也没问题。

【打破方正,阶梯踩出客厅惊喜】
打破框架限制,激荡出饶富趣味的空厅,不仅地板有高低,连客厅都不是呆板的方正。设计师以橡木染白的电视墙做出圆弧造形,可以当座椅的窗台一路连接到通往阁楼书房的阶梯,下方都有照明,既营造氛围,又能兼顾行走安全。

客厅的收纳展示柜虽然是简单的四方形组合,颜色也是与墙面相近的白色,却因为有横有直、有大有小,在极简风格中展现另一种活泼;而双面柜的概念也创造出宛如屏风般的作用。

【创意设计,打造空中小书房】
男主人需要的书房就在半空中!将原本与客厅同侧的两间小房间之一做出圆弧形的储藏室,上方就做出开放书房,连天花板及书桌都顺势做出弧形,而且壁面向着厨房的那边做出斜面切角,目的是为了家人互动。

【善用阳光,营造明亮纾压卧室】
主卧室虽然隔出更衣室,但面对充沛的采光,当然要加以利用;于是设计师在中段做出镂空,让更衣室在白天也不一定要开灯,而且更显出宽敞的空间感。

至于阳台,则是构筑纾压空间的重点场域;利用碳化南方松斜切处理,规划置物层架搭配绿色植栽,让屋主一起床就能拥有好心情。

原本是中规中矩的四居室格局,在设计师的创意装修下,巧妙运用3.6米的层高优势,做出多层次的变化,在纯净、利落的氛围中,创造出空间的惊叹号,也充分满足了屋主的期待。