当初,设计师只是为了平均分配每个房间的面积,差一点让这栋自地自建的独立式住宅,变成”有棱有角”的怪异格局;幸好有建筑业背景的屋主及时发现,透过莳筑设计团队抢救,总算让新家完善亮相!

屋主夫妻对父母相当孝顺,坚持把孝亲房要放在好位置,并将长辈喜欢的花样融入设计;莳筑团队站在”以居住者为本”的角度思考,更改原先格局,而且依照居住者的习惯、个性分配,让空间分配更有层次感,达到皆大欢喜的局面。

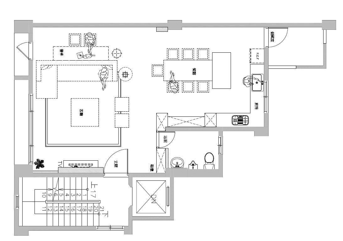
2楼公共区域平面图。平面图片提供 / 莳筑设计

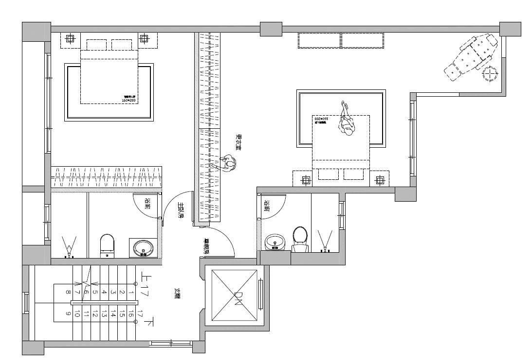
3楼主卧室与孝亲房平面图。平面图片提供 / 莳筑设计

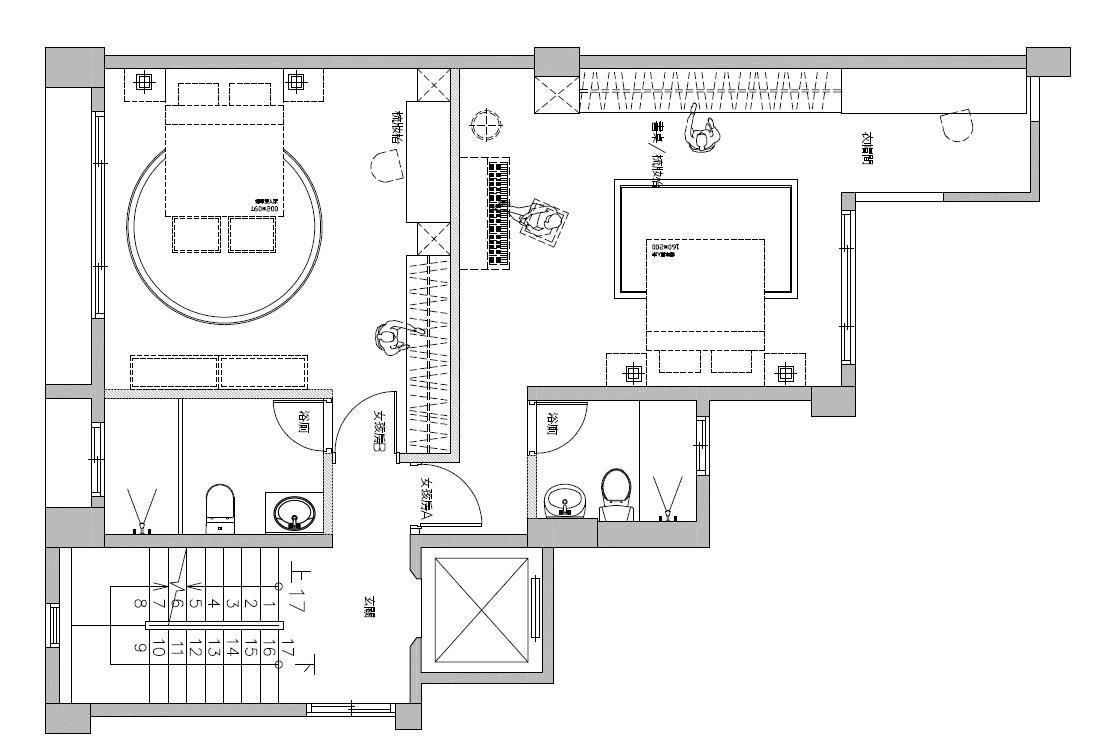
4楼女儿房平面图。平面图片提供 / 莳筑设计
【延伸电视墙,拓展客厅大器感】
如果依照原有的设计(可参考2楼平面图),客厅受限玄关的出入口,会变得太狭长。于是利用电视墙延伸左右两边,把玄关入口也纳入线板设计,扩大宽度,营造客厅的大器感。

【隐藏式设计,公共空间好清爽】
玄关侧边墙面的收纳柜,除了当作鞋柜之用,当中并隐藏着公共卫浴的入口,设计相当巧妙,完全不会影响到客厅链接餐厨空间的视觉美感。开放式的厨房则以人造石中岛与餐厅连结,灯饰及壁面呈现bling bling的时尚感。

【好房给父母,软件布置展孝心】
孝顺的屋主把又大又好的空间留作孝亲房使用,而且面对原本设计中凸出的畸零地,设计师巧妙布置成阅读小角落,并以大地色的图腾墙纸营造温馨又有品味的质感。

至于床的另一侧是整墙的衣柜,让老人家收纳免烦恼;并融入媳妇特别为婆婆挑选的化妆台喷砂镜面花样,精致之余,当不使用时也可拉门关上,避免镜子照床的禁忌。

【女儿房方中带圆,贴近真性情】
四楼的大房间留给较成熟稳重的大女儿使用,与孝亲房一样,凸出畸零地规画成小书房及梳妆台。其次,采用典雅线布置,符合大女儿内敛个性;壁面上方另以深咖啡色带环绕,稳住了白色过于轻淡的氛围,而圆形天花板缓和了中性的方方正正。

莳筑团队的客制化服务,在本案中充分发挥。从主卧房的土耳其蓝至小女儿房的蒂芙尼绿,符合居住者的个性,且所有的床组更是客制化,滚边各有不同,各自绣上房间主人的名字,无论质感或设计,令屋主一家人又惊又喜!