会员登入
网友 / 设计师注册
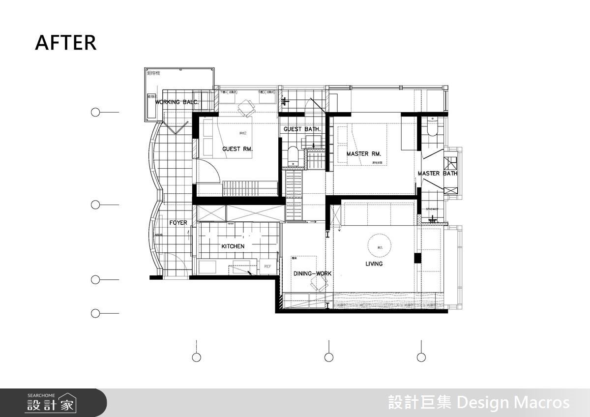
81平方米居宅,屋主是位喜欢中性风格的单身女性,因此设计师重整空间结构与老旧管线,将原有厨房墙面拆除,再给予Loft工业风格的修饰,打造出充满个性美的机能单身宅。【粗犷材质,堆叠个性空间韵味】设计师将格局重新整顿,将美丽的窗外视野留给客厅,让窗景作为空间装饰的一部分,原先壁纸也予以刨除,并加入特色砖材,选用抿石子、红砖等酝酿质朴况味,且刻意于墙面做出斑驳造型,搭配全室的轨道灯运用,打造粗犷原味的工业质感。地板以木质铺陈,且采用大量的活动箱椅,让使用场景可随心变换,就连餐厅也配置轨道型餐桌,透过可左右滑动的桌台,替屋主争取更多使用弹性;而原先旧空间的玻璃砖,在设计师的巧思下,拼接成拉门与窗面,不仅替空间穿引光线,更成就别出心裁的美感立面。
老屋化身探险丛林,Loft风的清新写字楼
老屋变身工业风写字楼,彩绘屏风添活力
壁癌、漏水全解套,二手房变身美型工业宅
挥别呆板印象,以Loft风打造企业展演厅
住进工业风酒店,体验粗犷质感的居住经验
个性当道,老屋化身60平Loft风小宅
悠闲午后时光,尽在83平米工业风咖啡厅
三十年老旧写字楼,变身经典美式工业宅
20年老屋改造,走进美剧生活的92平工业宅
老屋混合复古家具,变身美式工业烘培坊
2021 TINTA金邸奖 延长征件至3/31,年度设计大奖等你来角逐!
推荐活动│烟火计划第三季-「春日人家」,邀你用设计定义家的温度
【征件延长至 3 月 31 日】2020 TINTA 金邸奖热烈报名中 ! 把握最后机会竞逐年度赛事