装修的基调以“度假”为目的,除了合宜的格局,并利用色彩营造无压力氛围、精准的手工提升细致度,以及客制化的家具与家饰,搭配环环相扣的设计巧思,释放出特有的品味,让人百看不厌。

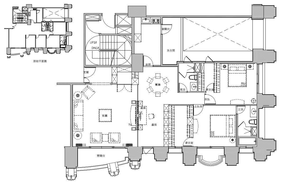
第一眼看到这个空间,几乎每个人都惊讶客厅好大!不过,当知道这是一户116平方米的居家,大家都直呼”怎么可能”。原来,房屋在毛胚屋阶段就请莳筑设计总监朱皇莳协助规划,让空间布局更符合屋主的使用需求。

【客制化元素,营造玄关闪耀质感】
玄关从衣帽间的柜门至天花板,以客制化的线板为空间展开新的扉页;而柜门把手采用施华洛世奇水晶,与上方的照明相呼应,呈现对细节的坚持。其次,玄关镜的粗框以灰玻切割后再拼贴,手工制作闪耀着高质感。

电视墙则以亚麻灰石材铺设,天然纹路本身就具有抚慰疲惫心灵的效果,精致的线板木作彷佛框住石材向上延伸,融为一体。

【吊顶+石材墙,展现客厅大气感】
强调休闲的轻松无压力,大地色彩的客厅并没有做过多的装饰,但利用多层次线板往上内凹的天花板,不仅有拉高空间的视觉效果,也是另一种质感的加分。

【圆形吊顶,勾勒出餐厅华丽气息】
电视墙后面是餐厅及书房,难得的宽敞空间得以做出圆形的多层次吊顶,将整个餐桌区域笼罩,而采用不锈钢及LED灯的现代化红酒架,也可以当夜灯使用,将这里营造成私人的 Lounge Bar。

至于相邻的书房,则是以墙纸取代粉刷,为空间注入活泼元素,客制化的书桌配合餐厅的圆而有弧形的抽屉,柔化原本严肃的调性,令人感受自在的气息。

【精致床头设计,增添卧室好氛围】
原本四居室格局,更动后变成二室二厅,空间感明显扩大;设计师并针对卧房进行不同规划。其中,主卧室以绷布加铆钉打造超厚实背墙,抓住众人目光之余,成功虚化左侧的浴室门;床尾则在壁面规划柱子立体造型,藉以隐藏更衣室入口。

至于次卧,以中性化的大地色彩勾勒舒适感,并在床头以纯净的白色,突显线板的繁复雕工,精致却不至于过份华丽;床尾空间则放置的五斗柜,柜体门片的变化有助于化解单调,搭配轨道式的挂画方式,既随兴又便利。

【时尚双排衣柜,好看又有大容量】
两间卧室均规划更衣室,提供收纳需求。主卧更衣室在端景墙贴上穿衣镜,让空间感无限延伸,多格抽屉收纳机能十足(左图);次卧的镜子则在拉门背面,一样双排收纳,更多了客制化的梳妆椅,典雅中充满时尚感(右图)。

116平方米原本四室两厅格局,而且浴室也有三间,导致每间房都显得狭小;但透过部分更动,调整为两室两厅的格局,不仅放大公共区域,同时更增加一间书房及两间更衣室,生活机能更完善,舒适性也更突出。