澄璞_01 图片搜寻结果

澄璞_01

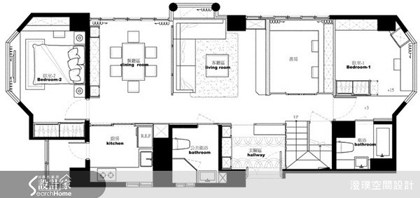
132平米 ‧ 复式 ‧ 四居室 ‧ 欧式古典

<< 12>> 每页16笔,共 18 笔资料
Loading