繁体版
TINTA金邸奖
Search
找文章
找设计师
找图片
找视频
close
热门关键词/
MyHome设计家
找设计师
找图片
找文章
找视频
登入 / 注册
会员登入
网友 / 设计师注册
如何在设计家刊登作品?
观林_23 图片搜寻结果
观林_23
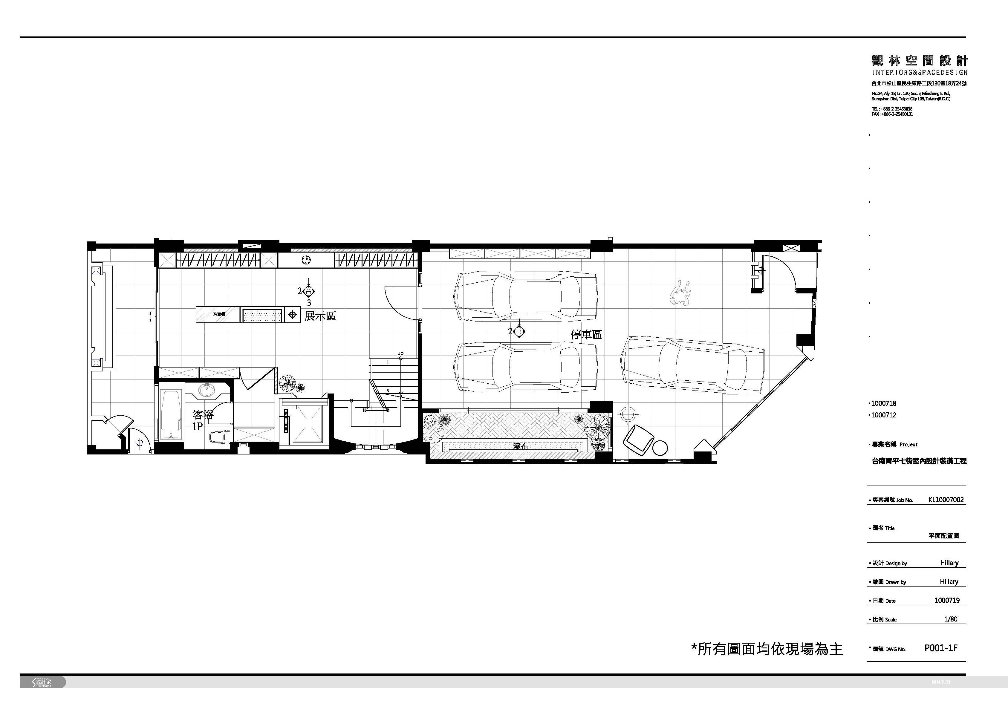
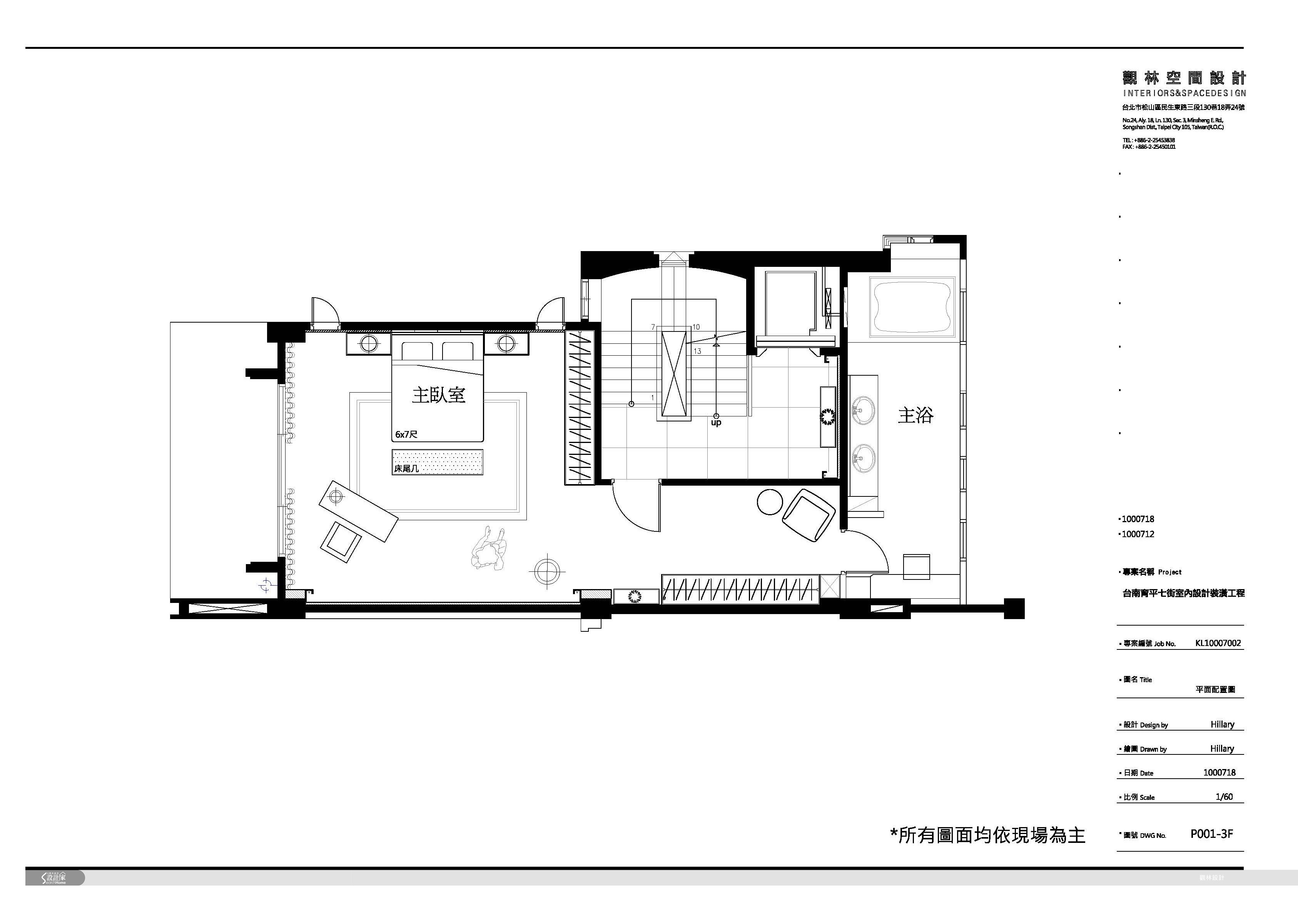
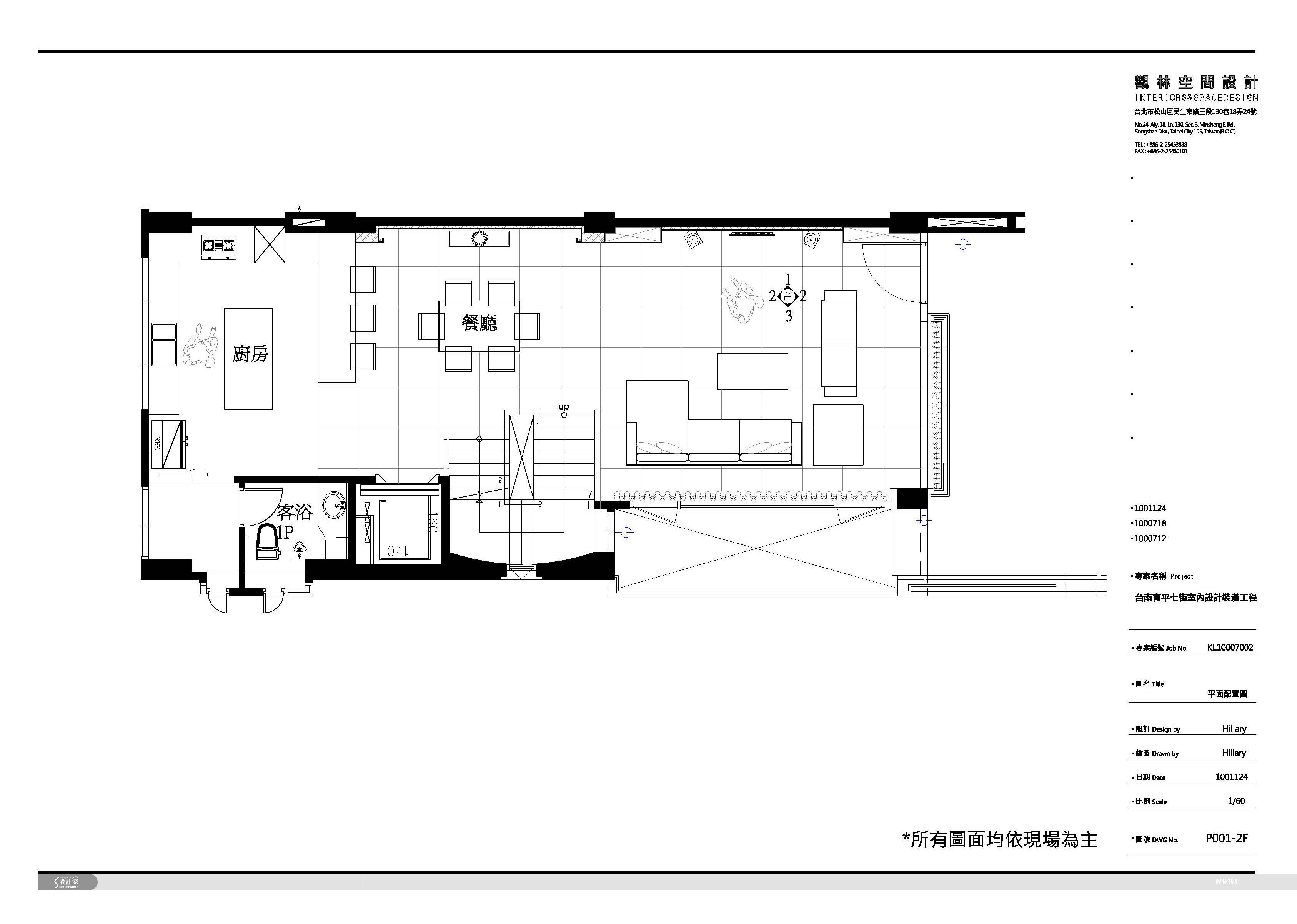
376平米 ‧ 别墅 ‧ 三居室 ‧ 现代风
客厅
餐厅
厨房
吧台
卧室
楼梯
走廊
<<
1
2
3
4
>>
每页16笔,共 56 笔资料
Loading