磐磊_03 图片搜寻结果

磐磊_03

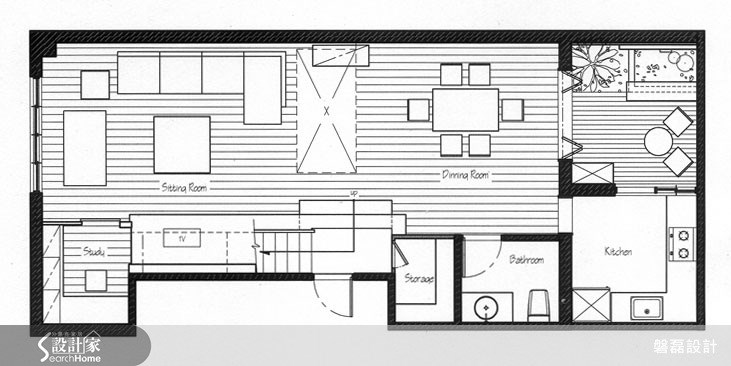
188平米 ‧ 别墅 ‧ 三居室 ‧ 现代风

<< 12>> 每页16笔,共 18 笔资料
Loading