好室_08 图片搜寻结果

好室_08

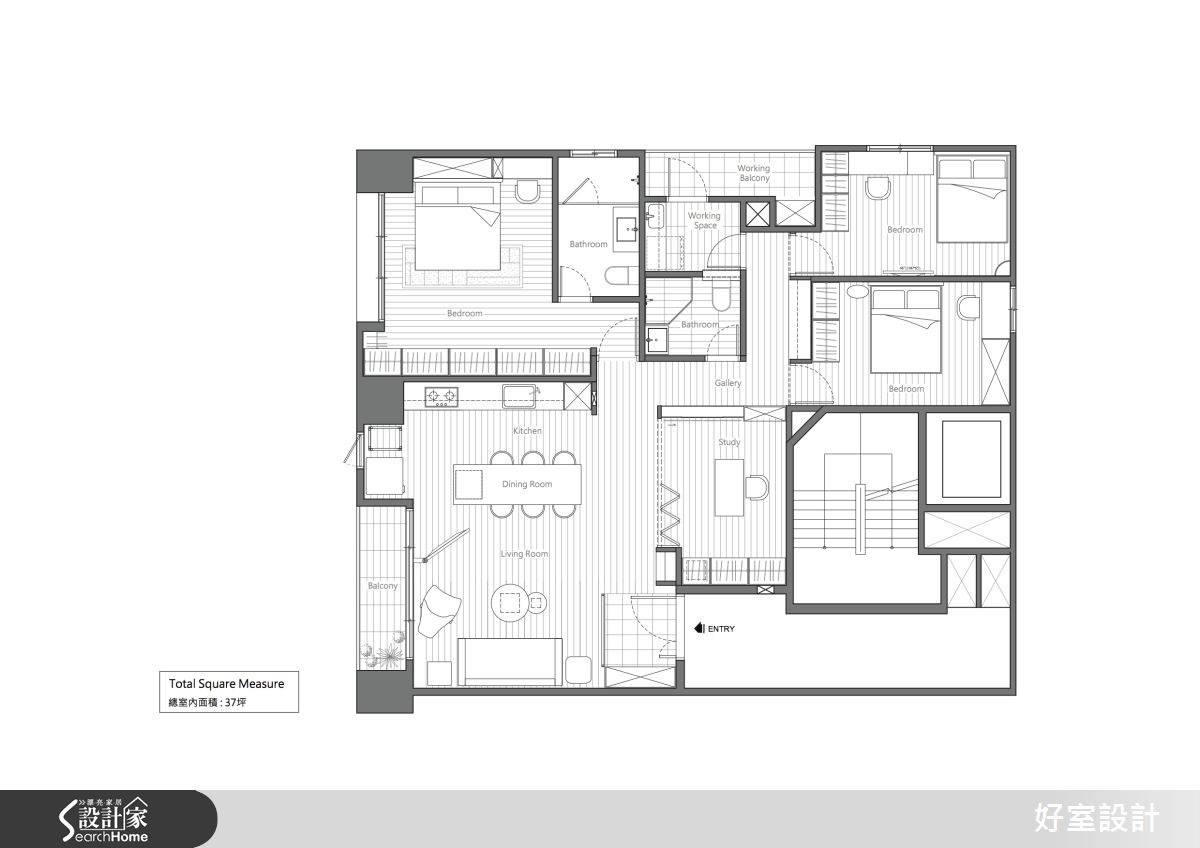
122平米 ‧ 平层 ‧ 三居室 ‧ 工业风

<< 12>> 每页16笔,共 22 笔资料
Loading