繁体版
TINTA金邸奖
Search
找文章
找设计师
找图片
找视频
close
热门关键词/
MyHome设计家
找设计师
找图片
找文章
找视频
登入 / 注册
会员登入
网友 / 设计师注册
如何在设计家刊登作品?
专胜_04 图片搜寻结果
专胜_04
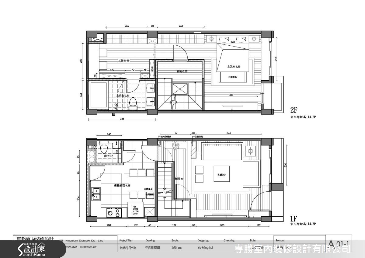
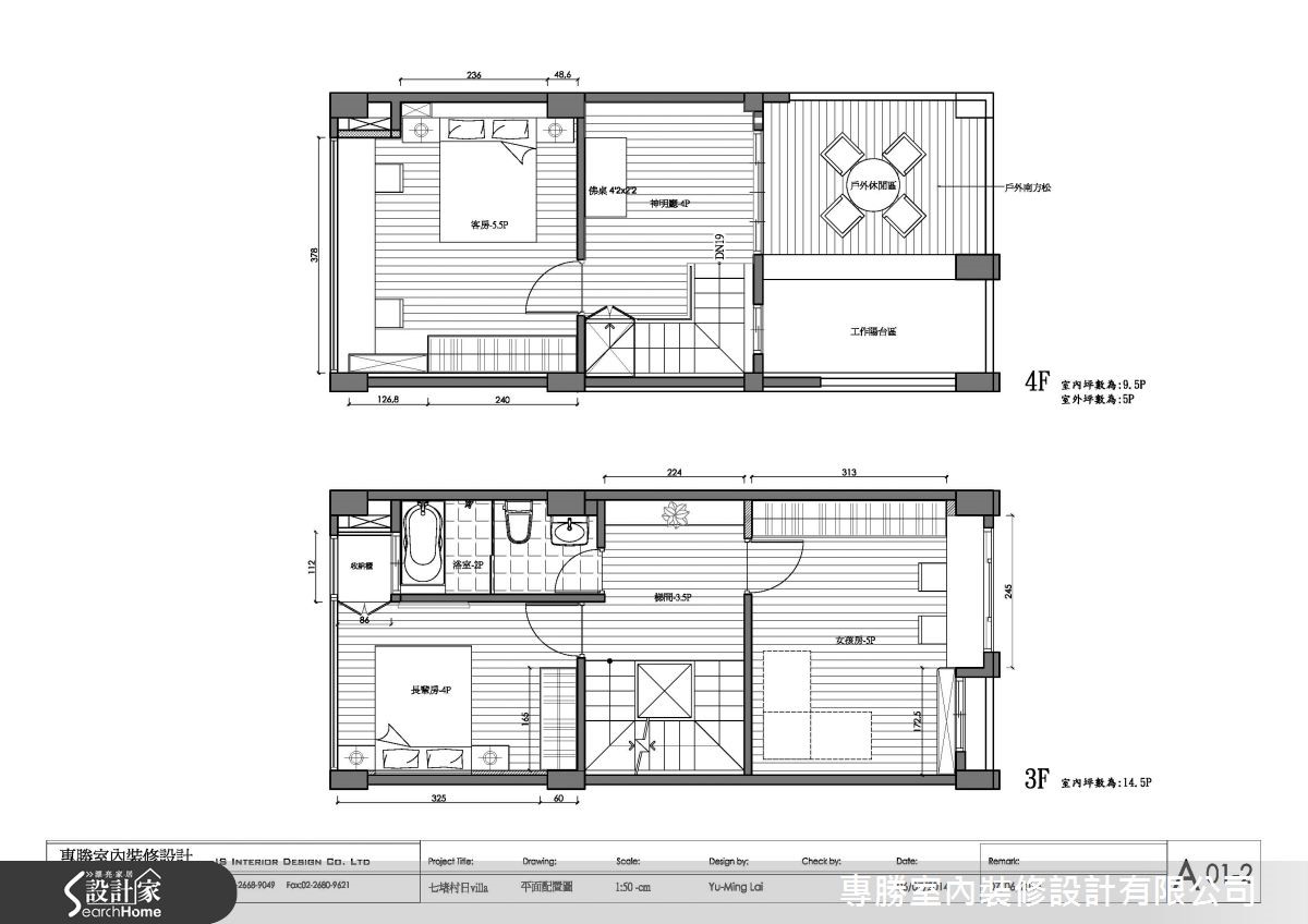
231平米 ‧ 别墅 ‧ 四居室 ‧ 休闲风
玄关
客厅
卧室
书房
儿童房
卫生间
楼梯
<<
1
2
>>
每页16笔,共 28 笔资料
Loading