W&CH_07 图片搜寻结果

W&CH_07

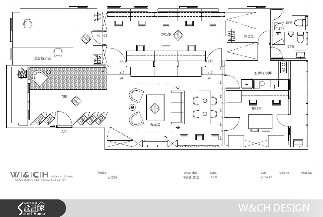
165平米 ‧ 平层 ‧ 商业空间 ‧ 工业风

<< 12>> 每页16笔,共 18 笔资料
Loading