繁体版
TINTA金邸奖
Search
找文章
找设计师
找图片
找视频
close
热门关键词/
MyHome设计家
找设计师
找图片
找文章
找视频
登入 / 注册
会员登入
网友 / 设计师注册
如何在设计家刊登作品?
马上联络设计师,我有装修需求!
发讯息
拨电话
马上联络设计师,我有装修需求!
发讯息
拨电话
贺泽_29 图片搜寻结果
贺泽室内设计
和我联络
总览
作品
报导
视频
VR
关于
贺泽_29
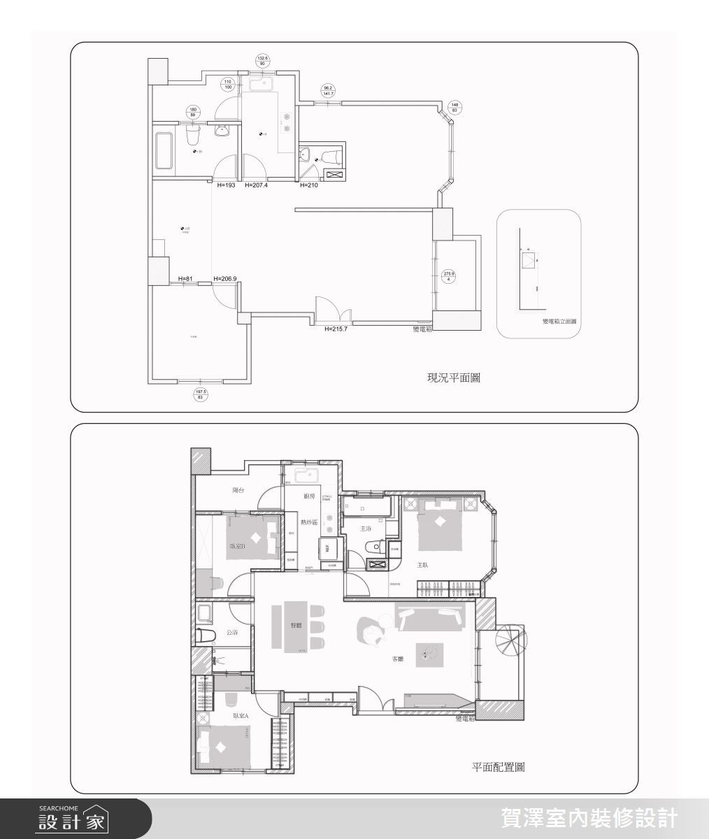
119平米 ‧ 平层 ‧ 三居室 ‧ 现代风
<<
1
2
>>
每页16笔,共 21 笔资料
Loading