繁体版
TINTA金邸奖
Search
找文章
找设计师
找图片
找视频
close
热门关键词/
MyHome设计家
找设计师
找图片
找文章
找视频
登入 / 注册
会员登入
网友 / 设计师注册
如何在设计家刊登作品?
橙白_45-橙白室内装修设计工程有限公司
17 of 17
橙白_45
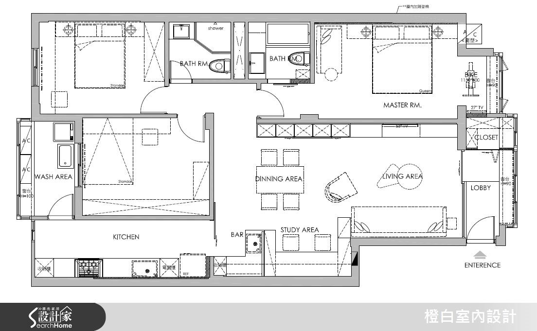
112平米 ‧ 平层 ‧ 三居室 ‧ 混搭风
相关案例报导
简化动线和色彩运用,打造老屋的素净妆容
2015-07-21
人气
19978
面对112平方米大龄老屋,为了打造出屋主心目中的理想居家,设计师以浅色调作为主要基调,呼应空间本身优秀的采光条件,让整个环境更显
...more
相关案例推荐
Loading