繁体版
TINTA金邸奖
Search
找文章
找设计师
找图片
找视频
close
热门关键词/
MyHome设计家
找设计师
找图片
找文章
找视频
登入 / 注册
会员登入
网友 / 设计师注册
如何在设计家刊登作品?
震腾_11-震腾室内装修设计工程有限公司
17 of 18
震腾_11
396平米 ‧ 三居室 ‧ 现代风
相关案例报导
化解畸零缺点,斜角独栋楼蜕变高机能
2016-02-04
人气
12230
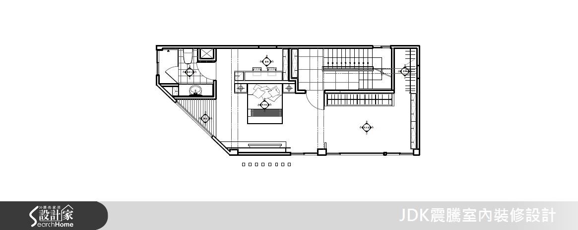
30年的独栋楼有着采光不足与动线、格局错乱等问题,尤其屋型不甚方正,空出许多零碎空间,造成浪费。但在设计师大刀阔斧改造后,不仅
...more
相关案例推荐
Loading