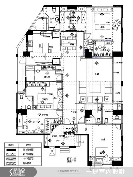
95坪老屋(16~30年)_奢華風案例圖片_一堤室內設計_一堤_01之5

提醒你

本網站隱私權政策已於2018年7月20日更新,請至閱覽並同意新版隱私權政策,若您未勾選同意而繼續使用本網站,則視為您已同意新版隱私權政策。

登入 / 註冊

會員登入

網友 / 設計師註冊

自動播放

每5秒自動播放下一張

  • 95坪老屋(16~30年)_奢華風案例圖片_一堤室內設計_一堤_01之5
    5 of 5
一堤_01

95坪 ‧ 老屋(16~30年) ‧ 單層 ‧ 奢華風

Loading