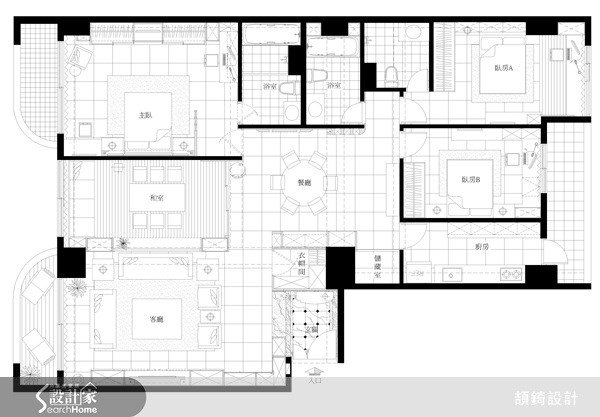
45坪新成屋(5年以下)_奢華風案例圖片_頡錡空間設計_頡錡_01之11

提醒你

本網站隱私權政策已於2018年7月20日更新,請至閱覽並同意新版隱私權政策,若您未勾選同意而繼續使用本網站,則視為您已同意新版隱私權政策。

登入 / 註冊

會員登入

網友 / 設計師註冊

自動播放

每5秒自動播放下一張

  • 45坪新成屋(5年以下)_奢華風案例圖片_頡錡空間設計_頡錡_01之11
    11 of 11
頡錡_01

45坪 ‧ 新成屋(5年以下) ‧ 單層 ‧ 三房 ‧ 奢華風

Loading