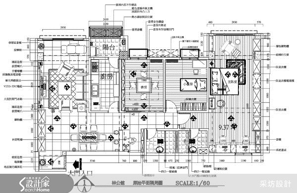
45坪中古屋(5~15年)_現代風案例圖片_采坊室內設計_采坊_12之19

提醒你

本網站隱私權政策已於2018年7月20日更新,請至閱覽並同意新版隱私權政策,若您未勾選同意而繼續使用本網站,則視為您已同意新版隱私權政策。

登入 / 註冊

會員登入

網友 / 設計師註冊

自動播放

每5秒自動播放下一張

  • 45坪中古屋(5~15年)_現代風案例圖片_采坊室內設計_采坊_12之19
    19 of 19
采坊_12

45坪 ‧ 中古屋(5~15年) ‧ 單層 ‧ 三房 ‧ 現代風

相關案例推薦
Loading