40坪預售屋_現代風案例圖片_芽米空間設計_芽米_37之21

登入 / 註冊

會員登入

網友 / 設計師註冊

自動播放

每5秒自動播放下一張

  • 40坪預售屋_現代風案例圖片_芽米空間設計_芽米_37之21
    21 of 21
芽米_37

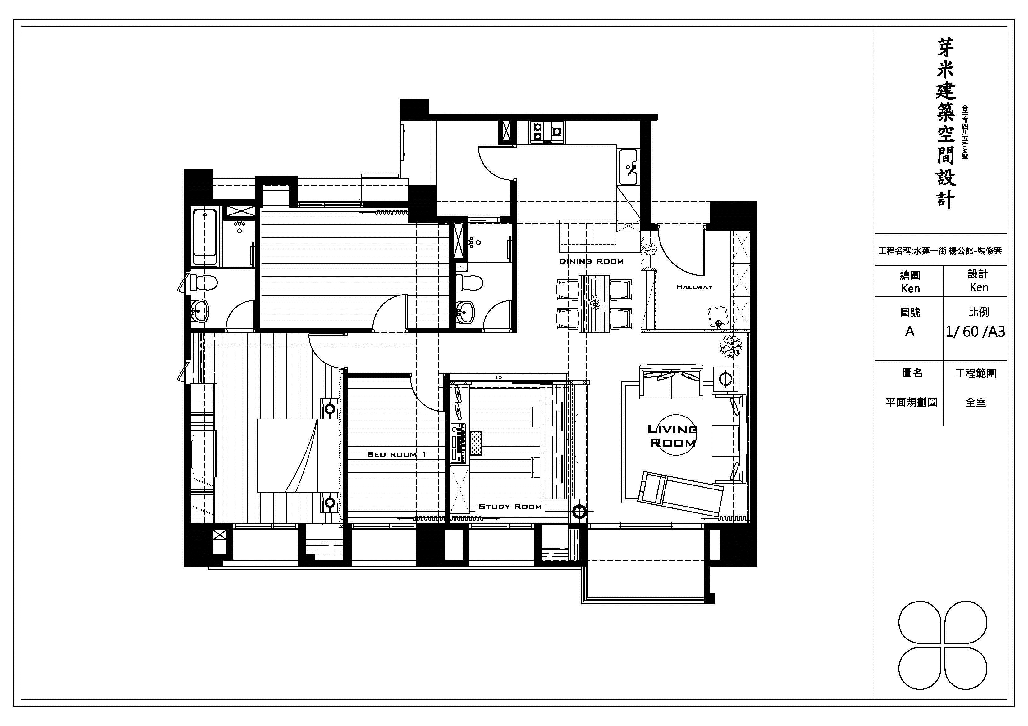
40坪 ‧ 預售屋 ‧ 單層 ‧ 四房 ‧ 現代風

相關案例報導
看更多案例報導
相關案例推薦
Loading