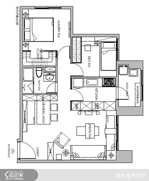
20坪新成屋(5年以下)_混搭風案例圖片_橙白室內裝修設計工程有限公司_橙白_25之18
聯絡設計師,我有裝潢需求!
0
登入 / 註冊
會員登入
網友 / 設計師註冊
如何在設計家刊登作品?
橙白室內裝修設計
首頁
作品
報導
影音
獎項經歷
關於設計師
聯絡詢價
☰
×
首頁
作品
報導
影音
獎項經歷
關於設計師
聯絡詢價
回設計家
ON
OFF
自動播放
每5秒自動播放下一張
18 of 18
橙白_25
20坪 ‧ 新成屋(5年以下) ‧ 單層 ‧ 兩房 ‧ 混搭風
0
相關案例報導
與家人更靠近! 10 款溫馨舒適的餐廳設計!
2014-12-23
人氣
24,848
好客的你,是不是常常約親朋好友來家中作客卻苦無有舒適的聚會空間?重視與家人用餐時光的你,是不是覺得沒有溫馨又放鬆的餐廳,讓你
...more
相關案例推薦
Loading