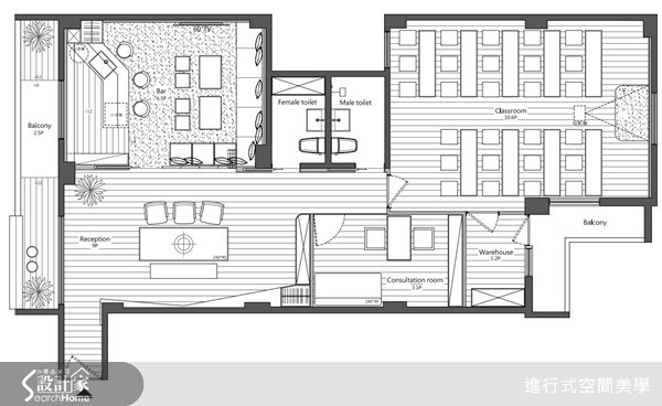
30坪老屋(16~30年)_現代風案例圖片_進行式空間美學有限公司_進行式_06之24

提醒你

本網站隱私權政策已於2018年7月20日更新,請至閱覽並同意新版隱私權政策,若您未勾選同意而繼續使用本網站,則視為您已同意新版隱私權政策。

登入 / 註冊

會員登入

網友 / 設計師註冊

Loading