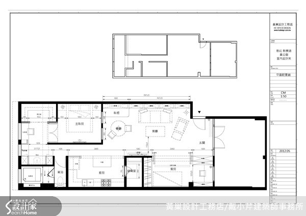
24坪老屋(16~30年)_鄉村風案例圖片_黃巢設計工務店/戴小芹建築師事務所_黃巢_19之40

提醒你

本網站隱私權政策已於2018年7月20日更新,請至閱覽並同意新版隱私權政策,若您未勾選同意而繼續使用本網站,則視為您已同意新版隱私權政策。

登入 / 註冊

會員登入

網友 / 設計師註冊

自動播放

每5秒自動播放下一張

  • 24坪老屋(16~30年)_鄉村風案例圖片_黃巢設計工務店/戴小芹建築師事務所_黃巢_19之40
    40 of 40
黃巢_19

24坪 ‧ 老屋(16~30年) ‧ 單層 ‧ 兩房 ‧ 鄉村風

相關案例報導
看更多案例報導
相關案例推薦
Loading