8坪老屋(16~30年)_混搭風案例圖片_天禾美學室內裝修設計有限公司_天禾美學_01之11

登入 / 註冊

會員登入

網友 / 設計師註冊

自動播放

每5秒自動播放下一張

  • 8坪老屋(16~30年)_混搭風案例圖片_天禾美學室內裝修設計有限公司_天禾美學_01之11
    11 of 11
天禾美學_01

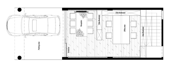
8坪 ‧ 老屋(16~30年) ‧ 透天別墅 ‧ 商業空間 ‧ 混搭風

Loading