14坪新成屋(5年以下)_簡約風案例圖片_橙白室內裝修設計工程有限公司_橙白_34京美術之21
聯絡設計師,我有裝潢需求!
1
登入 / 註冊
會員登入
網友 / 設計師註冊
如何在設計家刊登作品?
橙白室內裝修設計
首頁
作品
報導
影音
獎項經歷
關於設計師
聯絡詢價
☰
×
首頁
作品
報導
影音
獎項經歷
關於設計師
聯絡詢價
回設計家
ON
OFF
自動播放
每5秒自動播放下一張
21 of 21
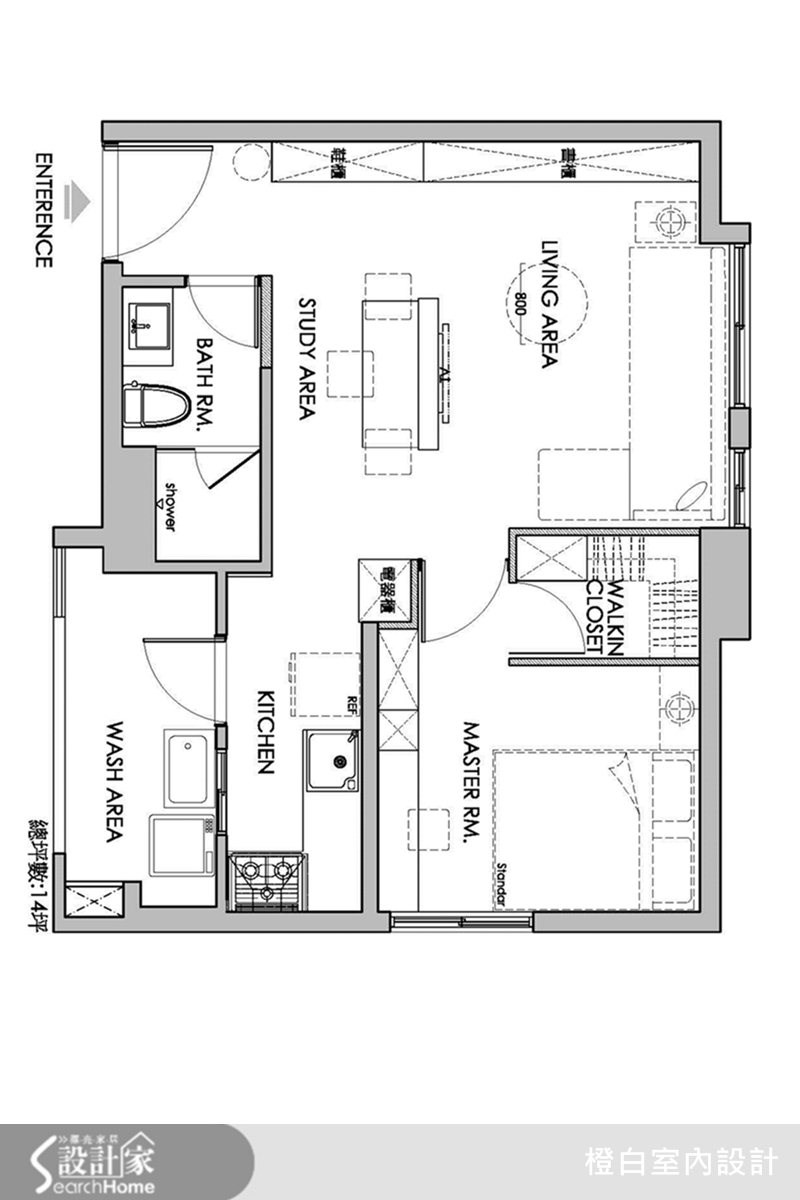
橙白_34京美術
14坪 ‧ 新成屋(5年以下) ‧ 單層 ‧ 一房 ‧ 簡約風
1
相關案例報導
輕熟女的獨立好時光 14坪剛好展現美感X機能
2014-07-16
人氣
21,416
女人最美的年齡,就是在輕熟女階段,我們都知道輕熟女獨立、自信,對生活品味有一定的要求,今天要介紹的設計案例屋主也是正值這個階
...more
櫃體的各種可能!用櫃體創造獨特的居家風格
2014-07-16
人氣
13,188
依據收納需求,不同櫃體的功能性都有所不同,因此在規劃上,所重視的設計要點都不盡相同,甚至在櫃體門片上也可以依據居家風格來定調
...more
相關案例推薦
Loading