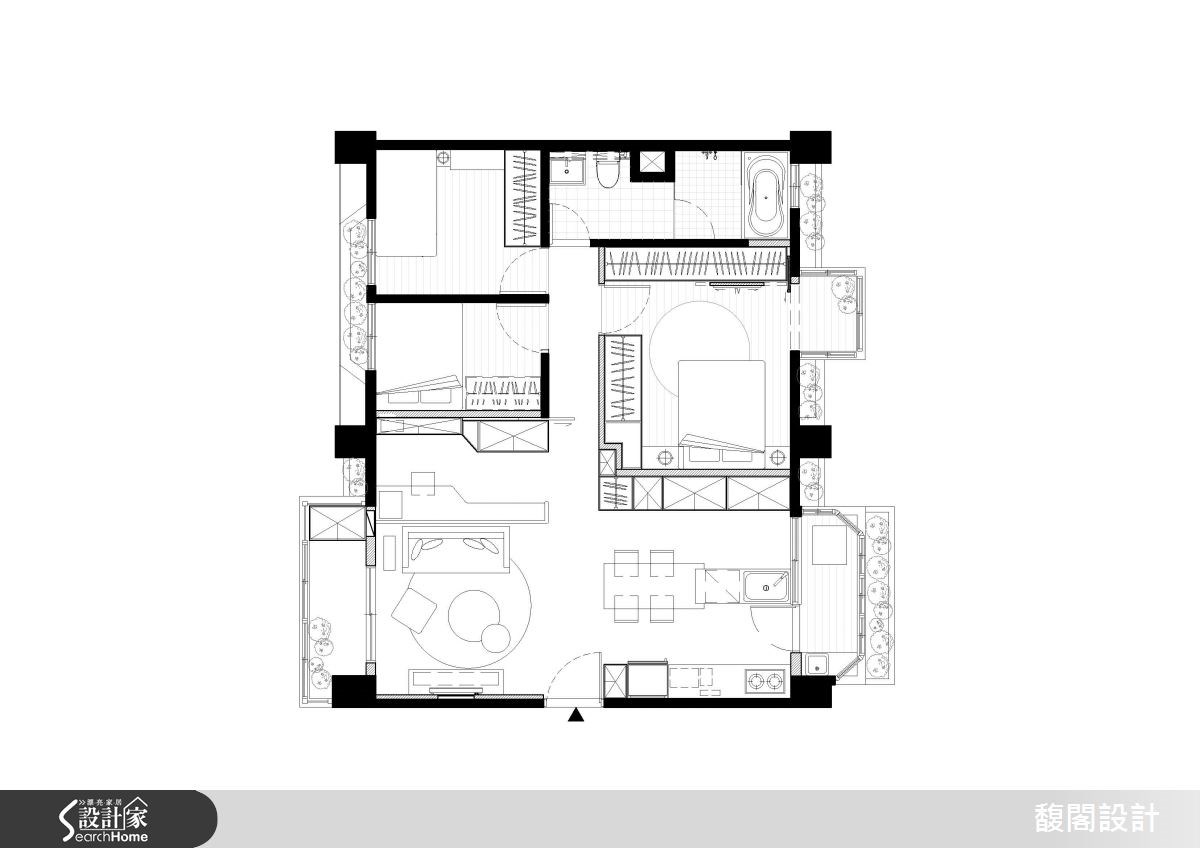
25坪老屋(16~30年)_鄉村風案例圖片_FUGE GROUP 馥閣設計集團_馥閣_繽紛色彩,一家人的童趣空間之25

提醒你

本網站隱私權政策已於2018年7月20日更新,請至閱覽並同意新版隱私權政策,若您未勾選同意而繼續使用本網站,則視為您已同意新版隱私權政策。

登入 / 註冊

會員登入

網友 / 設計師註冊

自動播放

每5秒自動播放下一張

  • 25坪老屋(16~30年)_鄉村風案例圖片_FUGE GROUP 馥閣設計集團_馥閣_繽紛色彩,一家人的童趣空間之25
    25 of 25
馥閣_繽紛色彩,一家人的童趣空間

25坪 ‧ 老屋(16~30年) ‧ 單層 ‧ 三房 ‧ 鄉村風

Loading