90坪中古屋(5~15年)_混搭風案例圖片_舨舍空間設計有限公司_舨舍_05之15
聯絡設計師,我有裝潢需求!
0
登入 / 註冊
會員登入
網友 / 設計師註冊
如何在設計家刊登作品?
舨舍空間設計
首頁
作品
報導
影音
獎項經歷
關於設計師
聯絡詢價
☰
×
首頁
作品
報導
影音
獎項經歷
關於設計師
聯絡詢價
回設計家
ON
OFF
自動播放
每5秒自動播放下一張
15 of 16
舨舍_05
90坪 ‧ 中古屋(5~15年) ‧ 透天別墅 ‧ 商業空間 ‧ 混搭風
0
相關案例報導
「墅」立商業空間的設計新典範!每層空間都要讓你超驚喜
2015-05-26
人氣
4,773
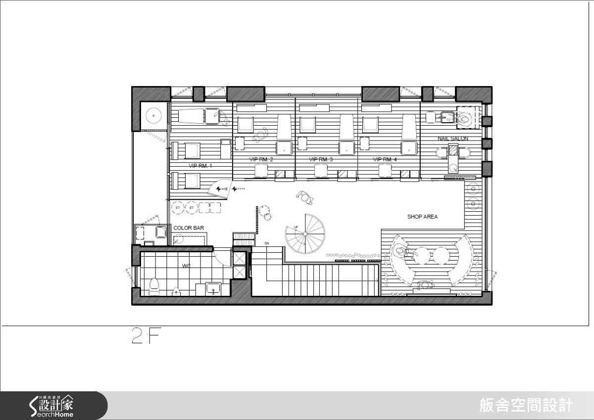
90 坪的中古屋透天別墅案例空間,對於案主來說,因為是獨棟空間,加上採光佳,因此希望能找到能將品牌意象與空間規劃精巧整合的設計師
...more
相關案例推薦
Loading