35坪新成屋(5年以下)_現代風案例圖片_浩室設計_浩室_14之15
聯絡設計師,我有裝潢需求!
0
登入 / 註冊
會員登入
網友 / 設計師註冊
如何在設計家刊登作品?
浩室設計
首頁
作品
報導
影音
獎項經歷
關於設計師
聯絡詢價
☰
×
首頁
作品
報導
影音
獎項經歷
關於設計師
聯絡詢價
回設計家
ON
OFF
自動播放
每5秒自動播放下一張
15 of 15
浩室_14
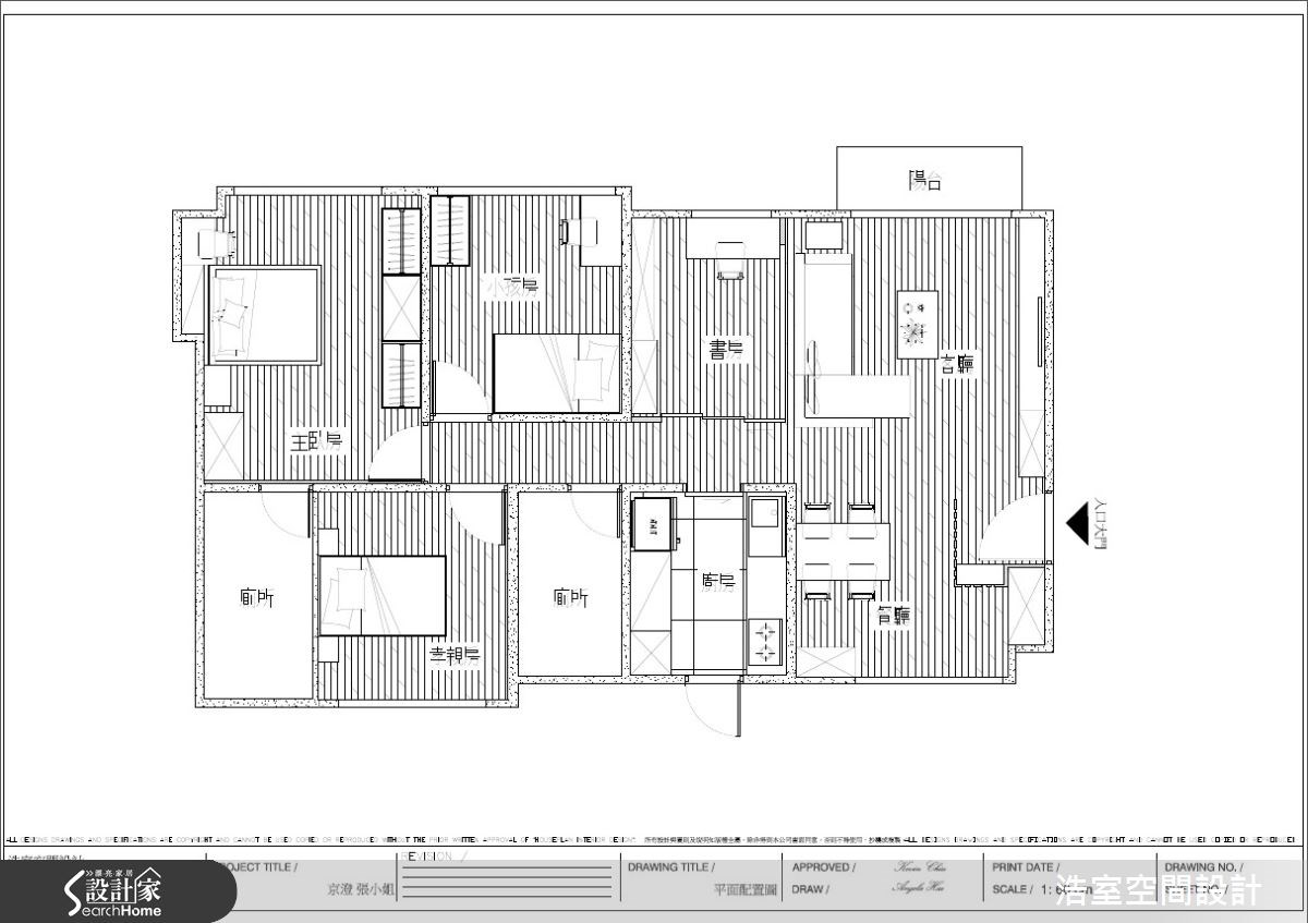
35坪 ‧ 新成屋(5年以下) ‧ 單層 ‧ 四房 ‧ 現代風
0
相關案例報導
為生活畫上最自然的原色 毫無累贅感的簡約現代宅
2015-05-22
人氣
16,806
設計師將現代居宅常見 35 坪 3+1 房的標準格局,清楚的劃分各區域的機能與作用,同時兼顧穿透性,使單層居宅也有著寬敞明亮的視覺動線
...more
相關案例推薦
Loading