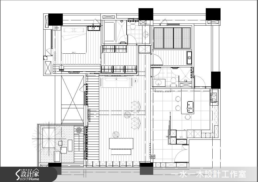
31坪新成屋(5年以下)_休閒風案例圖片_一水一木設計工作室_一水一木_03之23

提醒你

本網站隱私權政策已於2018年7月20日更新,請至閱覽並同意新版隱私權政策,若您未勾選同意而繼續使用本網站,則視為您已同意新版隱私權政策。

登入 / 註冊

會員登入

網友 / 設計師註冊

自動播放

每5秒自動播放下一張

  • 31坪新成屋(5年以下)_休閒風案例圖片_一水一木設計工作室_一水一木_03之23
    23 of 23
一水一木_03

31坪 ‧ 新成屋(5年以下) ‧ 單層 ‧ 兩房 ‧ 休閒風

相關案例推薦
Loading