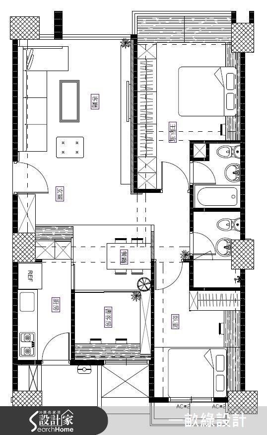
22坪新成屋(5年以下)_現代風案例圖片_一畝綠設計_一畝綠_02之13

提醒你

本網站隱私權政策已於2018年7月20日更新,請至閱覽並同意新版隱私權政策,若您未勾選同意而繼續使用本網站,則視為您已同意新版隱私權政策。

登入 / 註冊

會員登入

網友 / 設計師註冊

自動播放

每5秒自動播放下一張

  • 22坪新成屋(5年以下)_現代風案例圖片_一畝綠設計_一畝綠_02之13
    13 of 13
一畝綠_02

22坪 ‧ 新成屋(5年以下) ‧ 單層 ‧ 三房 ‧ 現代風

相關案例推薦
Loading