18坪新成屋(5年以下)_現代風案例圖片_將作空間設計工作室_將作_06之24
聯絡設計師,我有裝潢需求!
1
登入 / 註冊
會員登入
網友 / 設計師註冊
如何在設計家刊登作品?
將作空間設計
首頁
作品
報導
影音
獎項經歷
關於設計師
聯絡詢價
☰
×
首頁
作品
報導
影音
獎項經歷
關於設計師
聯絡詢價
回設計家
ON
OFF
自動播放
每5秒自動播放下一張
24 of 24
將作_06
18坪 ‧ 新成屋(5年以下) ‧ 單層 ‧ 一房 ‧ 現代風
1
相關案例報導
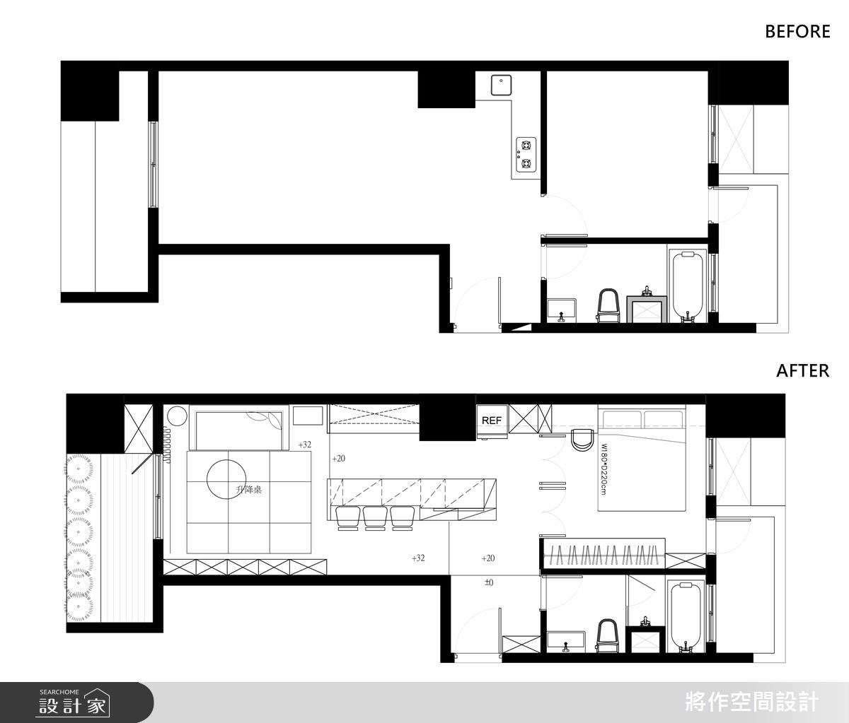
破解單面採光、狹長格局! 18 坪也能擁有舒適大生活
2017-11-29
人氣
8,238
18 坪現代風居宅,雖然本身具有 3 米 3 的屋高,卻是採光面不足的狹長屋。在本次空間規劃中,如何善用屋高的優勢條件?如何將走道位置
...more
相關案例推薦
Loading