36坪中古屋(5~15年)_現代風案例圖片_賀澤室內設計_賀澤_29之21
聯絡設計師,我有裝潢需求!
0
登入 / 註冊
會員登入
網友 / 設計師註冊
如何在設計家刊登作品?
賀澤室內設計
首頁
作品
報導
影音
獎項經歷
關於設計師
聯絡詢價
☰
×
首頁
作品
報導
影音
獎項經歷
關於設計師
聯絡詢價
回設計家
ON
OFF
自動播放
每5秒自動播放下一張
21 of 21
賀澤_29
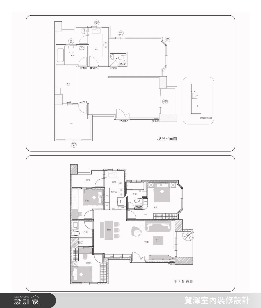
36坪 ‧ 中古屋(5~15年) ‧ 單層 ‧ 三房 ‧ 現代風
0
相關案例報導
不局限於生活經驗,好宅設計,讓收納超乎想像!
2020-12-31
人氣
7,031
居住者的生活經驗是空間設計的參考依據,但卻容易限制想像。好的設計,除了提出容量、機能的解決方案,更能在空間美感與視覺體驗上,
...more
用親情與信任設計的新婚宅! 36 坪中古屋溫馨變身記
2017-10-18
人氣
6,237
每一個裝修背後都有一個故事,本案則是與信任與親情有關。經由先前客戶的信任介紹,即將結婚的屋主夫妻找上賀澤設計,更請有裝修經驗
...more
相關案例推薦
Loading