28坪老屋(16~30年)_混搭風案例圖片_將作空間設計工作室_將作_14之9
聯絡設計師,我有裝潢需求!
0
登入 / 註冊
會員登入
網友 / 設計師註冊
如何在設計家刊登作品?
將作空間設計
首頁
作品
報導
影音
獎項經歷
關於設計師
聯絡詢價
☰
×
首頁
作品
報導
影音
獎項經歷
關於設計師
聯絡詢價
回設計家
ON
OFF
自動播放
每5秒自動播放下一張
9 of 9
將作_14
28坪 ‧ 老屋(16~30年) ‧ 混搭風
0
相關案例報導
好動線、強收納!28坪老屋翻新啟動好生活
2018-05-10
人氣
5,732
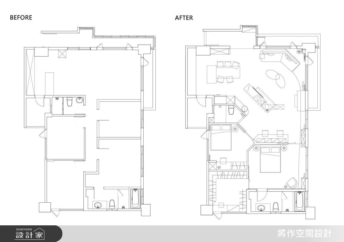
28 坪老屋,設計師打破呆板的矩型格局,釋出走廊地坪,透過行雲流水的動線擘劃,讓家中充滿互動可能性,搭配著滿室採光與植栽進駐,讓
...more
動線自由流暢 以創意格局放大居家視野
2018-01-01
人氣
6,721
有趣、好玩的家,豐富生活每時每刻的面貌!珍貴的室內空間,經過縝密設計規劃,打破了死板的矩形空間格局,釋出走廊地坪,轉換成生氣
...more
相關案例推薦
Loading